华兴·锦樾河畔 新楼盘 房子怎么样? 品质怎么样?深度测评
扫描到手机,新闻随时看
扫一扫,用手机看文章
更加方便分享给朋友
【营销中心】:028-62585717「销售热线」
【置业顾问】:13518186441「微信同步」
【置业顾问】:13668208612「微信同步」
从房价展望看,2024年下半年成都新房市场难现普涨行情,整体呈“核心稳、外围弱”格局。锦江区、高新区等核心区域因土地成本高、配套成熟,新房均价保持高位,而温江、都江堰等区域则需以价换量维持成交 。市场热度在政策推动下逐步回升,9月后“政策组合拳”效果显现,10月起成交持续上扬,四季度成交面积占全年40%,但传统旺季“金九银十”前期表现不及预期,区域热度差异显著 。购房者心理已从观望转向审慎入场,一方面受LPR下调、契税优惠等政策提振,信心有所恢复;另一方面更注重房屋实用性,100-140㎡改善户型成交占比显著上升,品质成为核心考量 。
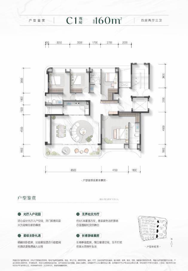
▪开发商:成都市华兴住宅房地产开发有限公司▪在售户型:高层:99-118-160平 洋房:160平 ▪单价:高层:待定
洋房:待定 ▪总价:高层总价:待定 洋房总价:待定 ▪在售楼栋: 高层1栋 洋房8栋 ▪样板间:1栋3楼 高层:99-118㎡样板间
洋房待定 ▪总楼栋:共8栋 高层1-5栋(共5栋) 洋房6-8(共3栋)▪总楼层:高层22-26F 洋房7-8F ▪层高:3.1米
▪梯户比:高层2T3和2T4 洋房1T2 ▪交房时间:2027年12月27日 ▪公摊:高层 20% 洋房10% ▪朝向:高层西 洋房东西
▪占地:约74亩 ▪绿化率:30.04% ▪容积率:1.5% ▪拿地时间:2020年初 ▪产权年限:70年 ▪总户数:523户
▪物业公司:成都兴华晟物业有限公司 ▪物业费:高层3.6元 洋房3.8元 ▪车位比:1:1.6 ▪装修情况:高层精装 洋房清水
▪付款方式:都可以 ▪贷款银行:都可以 ▪地铁:5号线,15/22号线规划中
交通
一轨:5号线骑龙站;
八横:天府一到五街、元秀路、华府大道,警校路
四纵:剑南大道、华秀路、益州大道、天府大道
商业
大润发商圈、世豪广场商圈、银泰城商圈、伊藤洋华堂商圈、港汇天地
五大繁华商圈环绕。
学校
怡心第一实验学校(直线距离)
成都教科院附属学校、成都七中高新校区等、成都美视国际学校、成都外国语学校等公立、私立优资学府环伺。
医疗
项目邻四川大学华西医院高新院区,
预计2026年可投入运营。
成都市第三人民医院高新院区(已批复),
为每一位业主家人的健康保驾护航。
【营销中心】:028-62585717「销售热线」
【置业顾问】:13518186441「微信同步」
【置业顾问】:13668208612「微信同步」
免责声明:
以上内容仅作为邀约邀请,涉及的图片为部分区域实拍图和美学畅想图,具体内容请以现场公示和合同约定为准;本文部分资料、部分图片来源于网络,如有侵权请联系我们删除
声明:本文由入驻焦点开放平台的作者撰写,除焦点官方账号外,观点仅代表作者本人,不代表焦点立场。
