西派浣花 最新楼盘动态 开盘价格 最最新批次房源信息 本周优惠及最新成交价
扫描到手机,新闻随时看
扫一扫,用手机看文章
更加方便分享给朋友
【营销中心】:028-62585717「销售热线」
【置业顾问】:13518186441「微信同步」
【置业顾问】:13668208612「微信同步」
温馨提示:专业一对一热情服务,为了节约您的等待时间,看房请提前致电预约
随着五一小长假的脚步日益临近,成都楼市的热度也在持续攀升。各大售楼处纷纷推出极具吸引力的特价活动,试图在这个购房旺季吸引更多客户。某位于天府新区的楼盘,不仅推出了多套特价房源,还为购房者准备了丰厚的家电大礼包,只要在活动期间购房,就能免费获得。还有楼盘推出老带新活动,老客户成功介绍新客户购房,双方都能享受物业费减免的优惠。这些诚意满满的活动效果显著,许多售楼处的到访量大幅增加。购房者们在售楼处仔细了解楼盘信息,与销售人员认真沟通,现场气氛热烈。据不完全统计,部分热门楼盘在周末的到访量比平时增长了50%以上,市场活跃度大幅提升
建筑面积: 60987.62㎡,总户数:310户,总栋数:3栋,车位:总数358个 ,车位比:1:0.7,物业费:9元/㎡,全屋智能家居系统
建筑面积:120-165㎡一房 ,286-370㎡二房
梯户比:1#楼28层 低区3-13F三梯6户/中区14-23F三梯5户/高区24-28F三梯4户
2#楼28层 低区3-13F三梯5户/中区14-23F三梯5户/高区24-27F三梯3户
1号楼标准层平面图
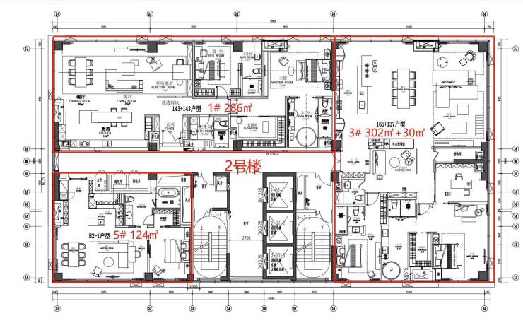
2号楼标准层平面图
【营销中心】:028-62585717「销售热线」
【置业顾问】:13518186441「微信同步」
【置业顾问】:13668208612「微信同步」
温馨提示:专业一对一热情服务,为了节约您的等待时间,看房请提前致电预约
免责声明:
以上内容仅作为邀约邀请,涉及的图片为部分区域实拍图和美学畅想图,具体内容请以现场公示和合同约定为准;本文部分资料、部分图片来源于网络,如有侵权请联系我们删除。
声明:本文由入驻焦点开放平台的作者撰写,除焦点官方账号外,观点仅代表作者本人,不代表焦点立场。
