西派浣花 最新楼盘详情 房价 楼盘最新相关信息 在售房源信息
扫描到手机,新闻随时看
扫一扫,用手机看文章
更加方便分享给朋友
【营销中心】:028-62585717「销售热线」
【置业顾问】:13518186441「微信同步」
【置业顾问】:13668208612「微信同步」
温馨提示:专业一对一热情服务,为了节约您的等待时间,看房请提前致电预约
在各项政策支持下,当前房地产市场总体稳定,但也有一些城市房地产市场在止跌回稳过程中出现波动,房地产开发投资延续下降态势。对于这些现象,要客观分析、正确看待。一方面,一些城市库存还比较高,消化库存、市场出清需要时间;另一方面,房地产发展潜力和空间巨大,但转化为当前发展动力和信心也需要一个过程。综合各种因素看,我国房地产业正处于发展阶段变化的重要节点,新旧模式转换需要时间,市场行为逻辑转变也需要时间。要深刻把握房地产业发展规律,正确认清当前形势,保持战略定力,积极主动作为,以更有力更精准的举措,加强对房地产市场的宏观调控,持续改善和稳定房地产市场预期,尽可能缩短调整时间,熨平市场波动,推动房地产市场平稳健康高质量发展。
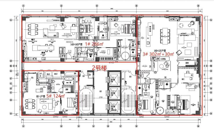
建筑面积: 60987.62㎡,总户数:310户,总栋数:3栋,车位:总数358个 ,车位比:1:0.7,物业费:9元/㎡,全屋智能家居系统
建筑面积:120-165㎡一房 ,286-370㎡二房
梯户比:1#楼28层 低区3-13F三梯6户/中区14-23F三梯5户/高区24-28F三梯4户
2#楼28层 低区3-13F三梯5户/中区14-23F三梯5户/高区24-27F三梯3户
1号楼标准层平面图
2号楼标准层平面图
【营销中心】:028-62585717「销售热线」
【置业顾问】:13518186441「微信同步」
【置业顾问】:13668208612「微信同步」
温馨提示:专业一对一热情服务,为了节约您的等待时间,看房请提前致电预约
免责声明:
以上内容仅作为邀约邀请,涉及的图片为部分区域实拍图和美学畅想图,具体内容请以现场公示和合同约定为准;本文部分资料、部分图片来源于网络,如有侵权请联系我们删除。
声明:本文由入驻焦点开放平台的作者撰写,除焦点官方账号外,观点仅代表作者本人,不代表焦点立场。
