西派浣花 楼盘在售价格优惠 最新在售户型 售楼楼处地址 售楼部营销中心电话
扫描到手机,新闻随时看
扫一扫,用手机看文章
更加方便分享给朋友
【营销中心】:028-62585717「销售热线」
【置业顾问】:13518186441「微信同步」
【置业顾问】:13668208612「微信同步」
温馨提示:专业一对一热情服务,为了节约您的等待时间,看房请提前致电预约
“金九银十”,是每年房地产最重要的节点。今年的“金九”已过,也许有的对于市场热度的体感并不明显,但数据端的体现却很直观——根据有关机构统计数据显示,今年9月成都全市商品房成交6721套,较去年同期增加1406套,同比增长20.5%。新房市场回升,更明显的感受来自千万级豪宅赛道的“白热化”对决。但这只是金九银十的序幕。据统计,从10月起到今年底,金融城三期等板块“地王级”项目即将陆续入市,超千套千万级房源集中供应,成都顶豪市场正经历前所未有的激烈竞争。因此,我们选择在“金九”落幕之际,再度审视成都的顶豪市场,从当下,窥见今年最后一个季度的走势。
建筑面积: 60987.62㎡,总户数:310户,总栋数:3栋,车位:总数358个 ,车位比:1:0.7,物业费:9元/㎡,全屋智能家居系统
建筑面积:120-165㎡一房 ,286-370㎡二房
梯户比:1#楼28层 低区3-13F三梯6户/中区14-23F三梯5户/高区24-28F三梯4户
2#楼28层 低区3-13F三梯5户/中区14-23F三梯5户/高区24-27F三梯3户
1号楼标准层平面图
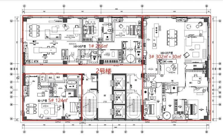
2号楼标准层平面图
【营销中心】:028-62585717「销售热线」
【置业顾问】:13518186441「微信同步」
【置业顾问】:13668208612「微信同步」
温馨提示:专业一对一热情服务,为了节约您的等待时间,看房请提前致电预约
免责声明:
以上内容仅作为邀约邀请,涉及的图片为部分区域实拍图和美学畅想图,具体内容请以现场公示和合同约定为准;本文部分资料、部分图片来源于网络,如有侵权请联系我们删除。
声明:本文由入驻焦点开放平台的作者撰写,除焦点官方账号外,观点仅代表作者本人,不代表焦点立场。
