电建国宾华曦府单价多少-精装品质如何-多少层-物业费多少-交房时间
扫描到手机,新闻随时看
扫一扫,用手机看文章
更加方便分享给朋友
【营销中心】:028-62585717「销售热线」
【置业顾问】:13518186441「微信同步」
【置业顾问】:13668208612「微信同步」
9月份各线城市商品住宅销售价格环比下降,但是,同比降幅总体持续收窄。“经济是一片大海,而不是一个小池塘,能够经受住风吹浪打甚至狂风骤雨的考验。”下阶段,要加力提效实施逆周期调节,持续用力扩大内需、做强国内大循环,进一步激发市场活力、提振发展预期,不断增强内生增长动能,力促经济持续健康发展,经济平稳运行的主基调没有改变。
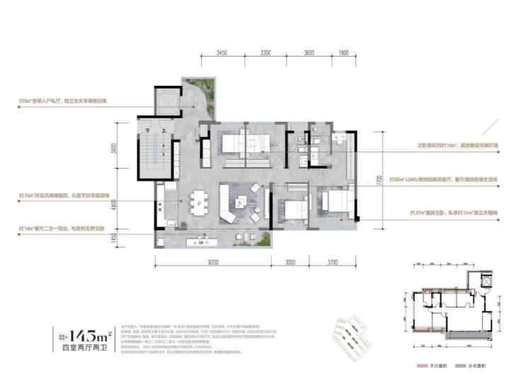
国宾华曦府占地92亩,容积率2.0。【绿化率】约35%;【项目规划】规划19栋建筑;【房源套数】945户;【产品面积】建面约110㎡—143㎡;预计交房时间:2026年9月
【营销中心】:028-62585717「销售热线」
【置业顾问】:13518186441「微信同步」
【置业顾问】:13668208612「微信同步」
温馨提示:专业一对一热情服务,为了节约您的等待时间,看房请提前致电预约!!!
免责声明:
以上内容仅作为邀约邀请,涉及的图片为部分区域实拍图和美学畅想图,具体内容请以现场公示和合同约定为准;本文部分资料、部分图片来源于网络,如有侵权请联系我们删除
声明:本文由入驻焦点开放平台的作者撰写,除焦点官方账号外,观点仅代表作者本人,不代表焦点立场。
