2025年新房购房政策 -电建国宾华曦府销售电话-户型图-总价多少
扫描到手机,新闻随时看
扫一扫,用手机看文章
更加方便分享给朋友
 
【营销中心】:028-62585717「销售热线」
【置业顾问】:13518186441「微信同步」
【置业顾问】:13668208612「微信同步」
新购房贷款客户首套房利率为LPR-50,二套房为LPR-30,首套房利率已至3%。对于存量贷款业主则更加友好,按往期多数LPR-60的情况来看,很多人房贷利率已达到2字头,月供进一步减少。其余LPR-20、LPR-30、LPR-40等各类情况,同样也将随着重定价日的到来而减少利率,选择重定价周期为3个月的业主将更快享受到低利率。
 
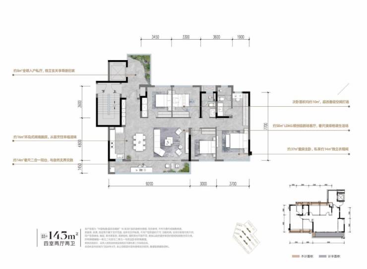
国宾华曦府占地92亩,容积率2.0。【绿化率】约35%;【项目规划】规划19栋建筑;【房源套数】945户;【产品面积】建面约110㎡—143㎡;预计交房时间:2026年9月
 
 
 
【营销中心】:028-62585717「销售热线」
【置业顾问】:13518186441「微信同步」
【置业顾问】:13668208612「微信同步」
温馨提示:专业一对一热情服务,为了节约您的等待时间,看房请提前致电预约!!!
免责声明:
以上内容仅作为邀约邀请,涉及的图片为部分区域实拍图和美学畅想图,具体内容请以现场公示和合同约定为准;本文部分资料、部分图片来源于网络,如有侵权请联系我们删除
声明:本文由入驻焦点开放平台的作者撰写,除焦点官方账号外,观点仅代表作者本人,不代表焦点立场。
 
  
  
 
 
  
  
  
  