西派浣花售楼部地址-电话-户型图-样板间视频-西派浣花总价多少
扫描到手机,新闻随时看
扫一扫,用手机看文章
更加方便分享给朋友
【营销中心】:028-62585717「销售热线」
【置业顾问】:13518186441「微信同步」
【置业顾问】:13668208612「微信同步」
温馨提示:专业一对一热情服务,为了节约您的等待时间,看房请提前致电预约
虽然高端豪宅、以及新规改善好房子销售虽然还相对不错,但几乎全国所有二手房和法拍房还在持续下行,二手房的跌跌不休,不断让新房价格立不住,站不稳,最终被拉垮。就在昨天统计二手房价格显示,9月份70个城市二手房价格“全部下跌”,这势必对楼市信心又是一记重拳。所以,当人口增长放缓与市场供应达到临界点,核心区域新房价格持续走高,供需关系发生变化,卖方的恐慌心理也会随之减少,不排除价格回升的可能性!
建筑面积: 60987.62㎡,总户数:310户,总栋数:3栋,车位:总数358个 ,车位比:1:0.7,物业费:9元/㎡,全屋智能家居系统
建筑面积:120-165㎡一房 ,286-370㎡二房
梯户比:1#楼28层 低区3-13F三梯6户/中区14-23F三梯5户/高区24-28F三梯4户
2#楼28层 低区3-13F三梯5户/中区14-23F三梯5户/高区24-27F三梯3户
1号楼标准层平面图
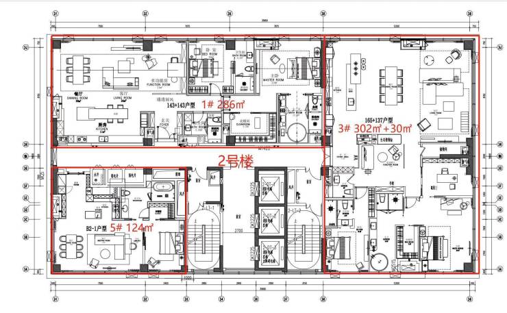
2号楼标准层平面图
【营销中心】:028-62585717「销售热线」
【置业顾问】:13518186441「微信同步」
【置业顾问】:13668208612「微信同步」
温馨提示:专业一对一热情服务,为了节约您的等待时间,看房请提前致电预约
免责声明:
以上内容仅作为邀约邀请,涉及的图片为部分区域实拍图和美学畅想图,具体内容请以现场公示和合同约定为准;本文部分资料、部分图片来源于网络,如有侵权请联系我们删除。
声明:本文由入驻焦点开放平台的作者撰写,除焦点官方账号外,观点仅代表作者本人,不代表焦点立场。
