新希望•天屹-在售新楼盘 最新在售信息 最新优惠详情 最新价格
扫描到手机,新闻随时看
扫一扫,用手机看文章
更加方便分享给朋友
【营销中心】:028-62585717「销售热线」
【置业顾问】:13518186441「微信同步」
【置业顾问】:13668208612「微信同步」
5月初,双流嘉禾兴城和颂,172套房源开盘去化约69%;温江中交柳岸澜语开盘,总价约193w-322万,开盘劲销约1.3亿。时间来到4月,郫都区鹭岛臻宸壹品狂卖约2.84亿,高居4月成都商品房销售榜NO.4土拍的激烈程度,同样让人意外。3月18日,龙泉、双流、郫都三宗地入市(各一宗),全部成交,双流、郫都两宗地溢价,最高5%;3月28日,温江、龙泉、新都三宗地入市(各一宗),全部成交,温江地块溢价3.68%;4月22日,郫都21亩住宅用地入市,溢价率33%;5月23日,郫都1宗、新都2宗住宅用地摆上货架,13家房企参拍,其中,郫都35亩地块溢价率59%;新都49亩地块溢价率19.6%!
连续三年一二手房产交易量全国第一,今年3月住宅楼面地价连破3万+、4万+,二手房价实现六连涨……

【项目基础信息】
开发商:千亿国企经开发展&先锋民企新希望地产
总占地:44亩
容积率:2.0
物业形态:10栋纯洋房
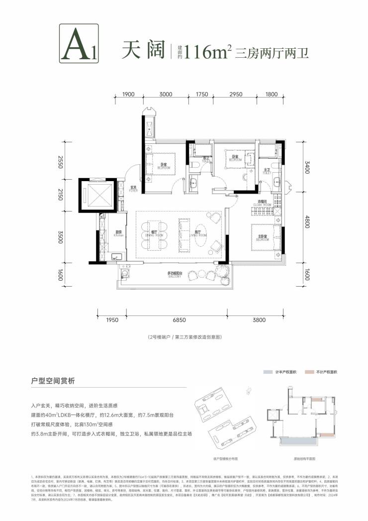
产品面积:建面约116㎡/143㎡
总层高:10-16F洋房
梯户比:1T2/2T2
绿化率:约35%(不含东干水渠)
交付标准:精装交付
项目地址:龙泉驿区东安街道跨湖路
【商业】龙湖东安天街,新城吾悦广场,万达广场,尽享湖芯醇熟生活圈
【交通】依靠蜀都大道/驿都大道/桃都大道等四横三纵道路网,通达全城;距地铁2号,远期规划有11、22、25号线
【教育】比邻向阳桥幼儿园/小学/中学、经开区实验中学(教科院领办)、成都市实验小学(和雅校区)、成都市实验小学(和雅校区、乐雅校区)等全龄优质教育资源,板块内更有四川师范大学成龙校区、四川财经职业学院等高等学府
【医疗】汇集有四川大学华西医院龙泉医院、成都中医药大学附属医院龙泉医院、龙泉驿妇幼保健院、四川省第三人民医院等三甲医院
【公园】近邻东安湖公园、驿马河公园、龙泉山城市森林公园,构建优质生活圈
【营销中心】:028-62585717「销售热线」
【置业顾问】:13518186441「微信同步」
【置业顾问】:13668208612「微信同步」
温馨提示:专业一对一热情服务,为了节约您的等待时间,看房请提前致电预约!!!
免责声明:
以上内容仅作为邀约邀请,涉及的图片为部分区域实拍图和美学畅想图,具体内容请以现场公示和合同约定为准;本文部分资料、部分图片来源于网络,如有侵权请联系我们删除。
声明:本文由入驻焦点开放平台的作者撰写,除焦点官方账号外,观点仅代表作者本人,不代表焦点立场。
