中铁建西派御府 成都 精选笔记 房价 楼盘户型 配套 交通地图
扫描到手机,新闻随时看
扫一扫,用手机看文章
更加方便分享给朋友
【营销中心】:028-62585717「销售热线」
【置业顾问】:13518186441「微信同步」
【置业顾问】:13668208612「微信同步」
2024年下半年成都新房楼市呈现明显分化态势,房价展望因区域而异。主城区核心板块如金融城、青羊新城等价格坚挺,天府新区、高新区部分热点区域甚至稳中微涨,而远郊及非核心板块价格仍有下行压力,崇州等区域新房报价环比跌幅超1% 。市场热度呈现“两头热、中间冷”特征,千万级豪宅与刚需小户型成交活跃,JFC交子金融广场等高端项目开盘去化率超八成,刚需板块也有阶段性成交高峰,但中端市场相对平淡,购房者心理更趋理性,投资需求退潮,自住需求主导市场,决策周期从200多天逐步缩短,但仍以“挑品质、看配套”为核心,对高性价比房源关注度提升 。
配套:
交通:金牛区三环内茶花新城,开车约20分钟到达天府广场,约500米27号线花照壁北站,约800米7号线茶店子站,多线换乘(2号,6号)
商业:步行到达龙湖西宸天街商圈。周边:金牛凯德广场商圈、华侨城商圈(山姆沃尔玛),天府艺术街,居然之家,欢乐谷
教育:成都最高的指标到校区域“金5”区,诸多名校茶店子小学 七中81附属学校,详情可以展厅了解。
生态:毗邻新金牛公园,1km即达天府艺术公园。区域公园众多:金牛体育中心、成都市新桥公园、合计约3150亩的城市公园集群。
文化:八大美学生活馆:天府美术馆 当代艺术馆 金牛图书馆 金牛文化馆等。
医疗:约300米省人民医院金牛分院,区域配套诸多三甲,私立医院(安琪儿)。
1,中铁建15年西派,金牛区第一座西派。 该区域新规产品
2,国际一线西派御用大师颜政 塔瓦猜作品,打造法国南部蔚蓝海岸风情园林。
3,会所配备高端项目必备之一:室内恒温泳池配高温池。金牛区第一座双层叠水水景园林。
4,项目首层大门&负一楼落客区,尊崇仪式双车马院入户。
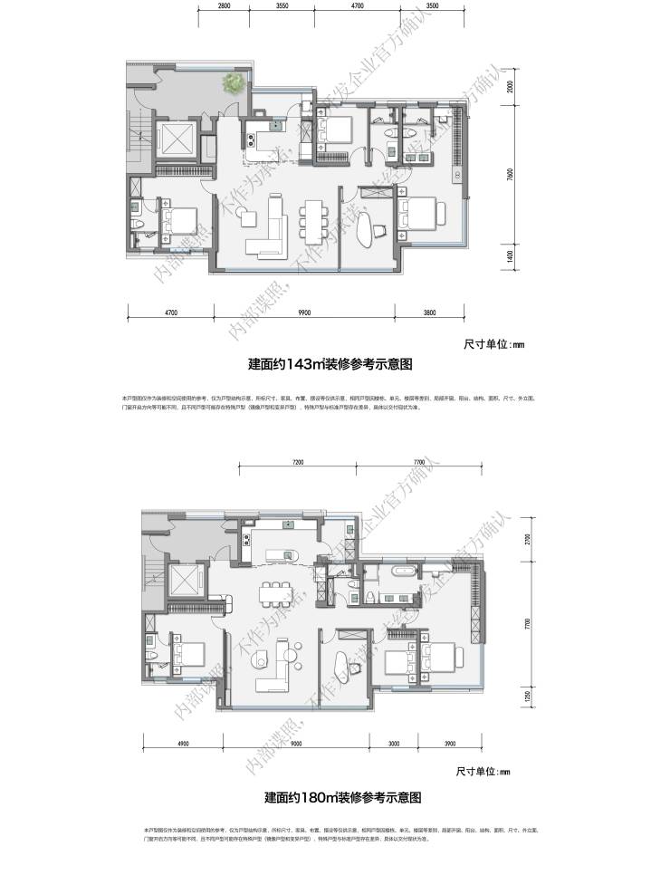
6,主力180户型,入门143户型,高改255户型,大户型占比近70%。面积段改善,圈层纯粹,产品升级。
6,会所近10米层高西派书吧,超大尺度会所空间革新高端产品格局。
7,建面约143户型全明设计和收纳体系,所有房间均能采光,5面宽朝南。
8,建面约180户型小家化卧室系统+客餐厅全南向设计,全明卫设计。
9,超13入户光厅,仪式感和居家空间,产品升级。
10,255户型高改珍藏产品即将面世,更加期待。
总结下项目的几个核心买点:
1、目前主城区在售,位置最好的项目:西2.5环,距离二环高架不到2公里,离市中心最近的项目
2、目前主城区在售,配套最齐全的项目:主城区城市界面最好的板块,老成都中的新城市,公园、地铁、商业、学校、医院均在1公里范围内步行可达
3、目前主城区在售,改善品质最纯粹的项目:西派豪宅的金字招牌,叠加全新一代的产品规划,同时大户型占比70%,豪宅品牌豪宅户型豪宅圈层。
【营销中心】:028-62585717「销售热线」
【置业顾问】:13518186441「微信同步」
【置业顾问】:13668208612「微信同步」
温馨提示:专业一对一热情服务,为了节约您的等待时间,看房请提前致电预约!!!
免责声明:
以上内容仅作为邀约邀请,涉及的图片为部分区域实拍图和美学畅想图,具体内容请以现场公示和合同约定为准;本文部分资料、部分图片来源于网络,如有侵权请联系我们删除
声明:本文由入驻焦点开放平台的作者撰写,除焦点官方账号外,观点仅代表作者本人,不代表焦点立场。
