万盛TOD旭辉中心成都楼市必看楼盘-看房热线-户型图-项目介绍-配套
扫描到手机,新闻随时看
扫一扫,用手机看文章
更加方便分享给朋友
【营销中心】:028-62585717「销售热线」
【置业顾问】:13518186441「微信同步」
【置业顾问】:13668208612「微信同步」
这几年来,房地产已经倒向买方市场,客户的选择越来越多,个性化的、地缘化的需求也越来越丰富多样。这一趋势其实对房企的市场嗅觉与研发专业性,提出了很高的要求。随着好房子理念的普及、新设计规范的实施,以及改善时代的到来,这两年市场上出现了不少产品创新的标杆,引发了许多房企的复制潮。另外一些政策,在稳定市场预期方面,政策有效期从一年延长至五年,为市民朋友吃下“定心丸”,未缴存住房公积金的人员也可以从现在开始缴存,合理安排房贷转换计划,充分享受政策红利。
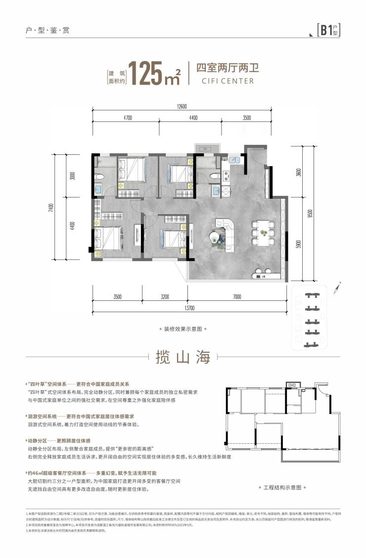
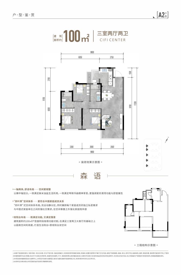
下叠——240㎡

上叠——169㎡


万盛TOD恒基旭辉中心基于营城理念,以TOD交通枢纽为核心,精准导入酒店、办公、商业等多元业态,合理布局住宅、教育、医疗、公园等基础设施,构建人产城共生共融的城市综合大盘。

在成都TOD开发浪潮中,作为成都市重点工程项目、首批16个官宣TOD项目之一的万盛TOD恒基旭辉中心奋勇争先,践行区域唯一官宣TOD的使命与担当,以前瞻视野与百亿级投资,从城市更新的角度,探索土地的全新开发模式。

【营销中心】:028-62585717「销售热线」
【置业顾问】:13518186441「微信同步」
【置业顾问】:13668208612「微信同步」
温馨提示:专业一对一热情服务,为了节约您的等待时间,看房请提前致电预约
免责声明:
以上内容仅作为邀约邀请,涉及的图片为部分区域实拍图和美学畅想图,具体内容请以现场公示和合同约定为准;本文部分资料、部分图片来源于网络,如有侵权请联系我们删除
声明:本文由入驻焦点开放平台的作者撰写,除焦点官方账号外,观点仅代表作者本人,不代表焦点立场。
