西派浣花-房价 楼盘怎么样?性价比怎么样?售楼部地址?售楼部电话?
扫描到手机,新闻随时看
扫一扫,用手机看文章
更加方便分享给朋友
【营销中心】:028-62585717「销售热线」
【置业顾问】:13518186441「微信同步」
【置业顾问】:13668208612「微信同步」
温馨提示:专业一对一热情服务,为了节约您的等待时间,看房请提前致电预约
在城市更新的浪潮和房地产市场深度调整的背景下,普通购房者面临前所未见的决策复杂度。如何在眼花缭乱的政策信号和市场波动中锁定真正的「价值资产」?答案就藏在「土地市场」里。作为房地产市场的「先行指标」,「地价」不仅决定房价天花板,更承载着城市发展的深层逻辑。掌握地价分析能力,意味着你能穿透表象看清城市价值的空间分布,在资产配置中抢占先机。当前成都地价已经刷新到41200元/㎡,这是特殊区域、特殊条件下的必然结果。今天我们就借成都未亮相的「地价天花板们」为例,结合所在板块,从底层逻辑到产品预测,为大家系统性的解析地价对置业投资的参考价值。
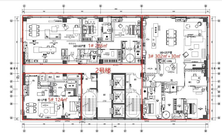
建筑面积: 60987.62㎡,总户数:310户,总栋数:3栋,车位:总数358个 ,车位比:1:0.7,物业费:9元/㎡,全屋智能家居系统
建筑面积:120-165㎡一房 ,286-370㎡二房
梯户比:1#楼28层 低区3-13F三梯6户/中区14-23F三梯5户/高区24-28F三梯4户
2#楼28层 低区3-13F三梯5户/中区14-23F三梯5户/高区24-27F三梯3户
1号楼标准层平面图
2号楼标准层平面图
【营销中心】:028-62585717「销售热线」
【置业顾问】:13518186441「微信同步」
【置业顾问】:13668208612「微信同步」
温馨提示:专业一对一热情服务,为了节约您的等待时间,看房请提前致电预约
免责声明:
以上内容仅作为邀约邀请,涉及的图片为部分区域实拍图和美学畅想图,具体内容请以现场公示和合同约定为准;本文部分资料、部分图片来源于网络,如有侵权请联系我们删除。
声明:本文由入驻焦点开放平台的作者撰写,除焦点官方账号外,观点仅代表作者本人,不代表焦点立场。
