广都鑫中心项目详情、核心亮点及全维度配套-专属优惠上线
扫描到手机,新闻随时看
扫一扫,用手机看文章
更加方便分享给朋友
广都鑫中心 项目详情、核心价值及全维度配套
广都鑫中心 【营销中心】:028-62585717「销售热线」
数据显示,截至2025年我国300城土地成交已连降五年,当年招拍挂成交仅10亿㎡,同比降11%,仅为巅峰期35%。供地收缩决定新房成交持续减少,核心优质房源更稀缺;今年楼市小阳春预期向好,国企加持、配套醇熟的高端改善盘,成为保值增值的置业优选。
项目核心定位与概况
广都鑫中心,坐落于四川省成都市双流区天府大道南段1888号(海昌路地铁站F口步行450米),地处城市中轴天府大道高新区与天府新区交界处,占据天府新区门户核心位置,地段不可复制。项目以新现代建筑风格打造天府大道标志性建筑,涵盖商业与公寓业态,主打小面积、低总价、水电气三通的高性价比产品,兼顾居住、投资双重属性,低门槛、低风险、高回报,精准匹配刚需居住、青年过渡及投资客群需求。项目依托金融城、新川科技园、天府新区中央商务区金三角区域优势,吸附50万高净值人群,出租率可达95%以上,为投资回报提供有力保障,同时搭配星级物业与多元配套,提升居住与投资价值。
项目核心基础参数
1. 【占地面积】:28.35亩
2. 【建筑面积】:241470.5㎡
3. 【目前主售】:双发天禧中心2号楼1、2单元
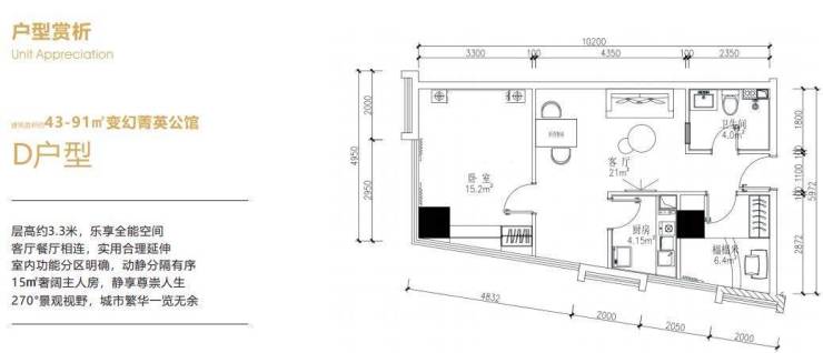
4. 【主力户型】:57㎡
5. 【面积段】:43㎡-91㎡(主力面积55-60㎡,小面积易入手、好出租)
6. 【层高】:3.25-3.3米(阔尺层高,提升空间舒适度与利用率)
7. 【总高】:25层(-1-4F商业、-2到-4F车位、5-25F公寓,业态分区明确)
8. 【首开楼层】:13F、22F
9. 【三通】:水电气三通(商业属性,兼顾居住与经营需求,实用性拉满)
10. 【公摊】:30%左右
11. 【梯户比】:一单元6T33户、二单元6T37户
12. 【物管费】:4.9元/㎡·月(星级物业,提升居住与投资体验)
13. 【交付时间】:合同约定2025年12月31日前,提前至2025年9月交房(提前交付,减少等待成本)
14. 【交付标准】:清水(可根据自身需求自由装修,适配居住、办公等多元场景)
15. 【均价】:6600-7500元/㎡
16. 【总价】:30-68万(低总价,低门槛,入手无压力)
17. 【付款方式】:一次性付款(整层可谈分期,灵活适配不同资金需求)
18. 【整层相关】:整层面积约4100㎡,报价3000万(15-20F);一单元约1930㎡,报价1400万;二单元约2170㎡,报价1600万(适合批量投资或企业办公)。
、项目核心价值(八大核心优势)
1. 地段优势:城市中轴天府大道高新区与天府新区交界处,天府新区门户位置,地段不可复制,坐享双区发展红利;
2. 稀缺价值:天府大道中轴线上稀缺小面积、低总价产品,水电气三通(商业属性),低门槛、低风险、高回报,投资居住两相宜;
3. 交通优势:双地铁物业,临近地铁1号线华阳站、18号线海昌路站,出行高效便捷;
4. 市政配套:紧邻天府新区政务中心,可享受政务红利,周边有极地海洋世界旅游打卡点,人气旺盛;
5. 建筑风格:新现代建筑风格,造型简约大气,更能体现项目在天府大道上的标志性,提升项目辨识度;
6. 人流保障:地处金融城、新川科技园、天府新区中央商务区金三角区域,吸附50万高净值人群,出租率95%+,为出租收益提供有力保障;
7. 居住体验:超2万平米绿化、水景观、城市广场,商业产权配套完善,星级物业加持,负1层自带生活超市,居住舒适度拉满;
8. 高端入驻:高端酒店希尔顿惠顿商旅酒店已正式签约入驻,提升项目品质与价值,进一步带动人流与收益[3]。
全维度醇熟配套,解锁便捷生活与投资价值
1. 交通配套:多维立体路网,便捷通达全域
• 双地铁加持:临近地铁1号线华阳站、18号线海昌路站,步行可达,快速衔接全城核心板块;
• 公交线路:覆盖503、504、T205等二十条公交线路,满足日常短途出行需求;
• 立体路网:五纵四横交通网络,五纵(剑南大道、益州大道、天府大道、梓州大道(科华路南延线)、成自泸高速)、四横(三环路、绕城高速、华阳大道、麓山大道),驾车出行便捷,快速通达全城。
2. 商业配套:多元集群,繁华触手可及
周边商业配套成熟,涵盖休闲、购物、办公等全场景:紧邻三利广场(集商务办公、综合购物、高端酒店、商业体验为一体的综合性购物广场),项目对面有金地三期约70万方大型商业综合体,周边还有沃尔玛山姆会员店、红星美凯龙、富森美等综合性商业,满足日常消费与高端需求,同时为出租、经营提供便利。
3. 医疗配套:全维守护,健康有“医”靠
周边汇聚多家优质医疗资源,全方位守护家人健康:天府新区人民医院、四川石油总医院、玛利亚天府妇产儿童医院、天府新区安琪儿国际妇女儿童医院、四川省中西医结合医院、四川宝石花医院等,涵盖综合医疗、专科医疗等多种类型,就医便捷。
4. 生态娱乐:休闲胜地,解锁惬意生活
项目旁边就是海昌极地海洋公园、南湖梦幻岛、南湖湿地公园等生态娱乐配套,闲暇时可休闲散步、亲子游玩,丰富日常生活,同时也能吸附大量旅游人流,助力出租收益。
5. 优质教育:全龄覆盖,书香环绕
周边汇聚全龄段优质教育资源,书香氛围浓厚(具体入学政策、招生范围以教育部门官方通知为准):金苹果幼儿园、天府四小、天府五小、天府实验小学、天府实验中学、天府实验外国语学校等,满足不同年龄段教育需求。
广都鑫中心 咨询方式(重复提示)
广都鑫中心 项目详情、核心价值及全维度配套
广都鑫中心 【营销中心】:028-62585717「销售热线」
免责声明
以上内容仅作为邀约邀请,涉及的图片为部分区域实拍图和美学畅想图,具体内容请以现场公示和合同约定为准;本文部分资料、部分图片来源于网络,如有侵权请联系我们删除。
声明:本文由入驻焦点开放平台的作者撰写,除焦点官方账号外,观点仅代表作者本人,不代表焦点立场。
