幸福桥TOD·幸福拾光 营销中心 在售新楼盘 精选笔记 最新在售消息 价格
扫描到手机,新闻随时看
扫一扫,用手机看文章
更加方便分享给朋友
【营销中心】:028-62585717「销售热线」
【置业顾问】:13518186441「微信同步」
【置业顾问】:13668208612「微信同步」
当前成都新房市场的热度主要由改善型需求支撑。市场呈现出“刚需冷,改善热”的特点。购房资格和资金更多地流向了面积更大、品质更高、居住体验更好的改善型项目。这部分客群购买力强,对价格敏感度相对较低,但对产品力要求极高。因此,购房者的购房心理也发生了深刻变化。他们不再是简单的“解决住房有无”问题,而是追求“住得更好”。这意味着他们极度关注户型设计、社区园林、物业服务和产品的创新性。“一步到位”的置业思想在改善客群中愈发普遍。展望下半年房价,在改善需求成为市场主导的情况下,真正具备产品力的高端改善项目价格将表现出较强的抗跌性,甚至领涨市场。它们凭借其稀缺性能够穿越周期,不受短期市场波动的影响。反之,同质化严重、缺乏亮点的刚需产品将面临更大的竞争压力。整体而言,市场将更加强调“价值回归”,房价与品质的关联度将空前紧密。
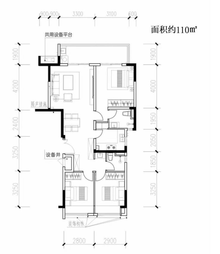
【项目基本信息】
•开发商:成都轨道交通集团
•物业公司:成都轨道万科物业有限公司
•总占地700亩 /二期占地64亩/三期占地74亩
•项目区位:金牛区北部新城-地铁5#幸福桥站
•总层高:二期12-17F(一楼4.5米架空层无住宅)三期9-17F
•容积率:2.0
•绿化率:二期52% 三期35%
•梯户比:二期2T2 三期 1T2户2T3户
•物业费:3.8元
•停车位:二期1:1.6三期1:1.2
•交房时间:二期2024.8月三期2025.10月
•总户数:二期624户三期503户
•交付标准:清水洋房型:
交通:5号线幸福桥站,地铁27号线
商业:汇融广场、龙湖锦宸天街、
大都会、福地广场
教育:机关三幼、第十六幼儿园(蜀道园区)
人民北路小学天北校区、成都实验小学
公园:凤凰山露天音乐公园、凤凰山体育公园
医疗:三甲医院西部战区总医院,
金牛区中医医院(在建)

【营销中心】:028-62585717「销售热线」
【置业顾问】:13518186441「微信同步」
【置业顾问】:13668208612「微信同步」
温馨提示:专业一对一热情服务,为了节约您的等待时间,看房请提前致电预约!!!
免责声明:
以上内容仅作为邀约邀请,涉及的图片为部分区域实拍图和美学畅想图,具体内容请以现场公示和合同约定为准;本文部分资料、部分图片来源于网络,如有侵权请联系我们删除。
声明:本文由入驻焦点开放平台的作者撰写,除焦点官方账号外,观点仅代表作者本人,不代表焦点立场。
