海德one99 成都 精选笔记 房价 楼盘户型 配套 交通地图
扫描到手机,新闻随时看
扫一扫,用手机看文章
更加方便分享给朋友
【营销中心】:028-62585717「销售热线」
【置业顾问】:13518186441「微信同步」
【置业顾问】:13668208612「微信同步」
温馨提示:专业一对一热情服务,为了节约您的等待时间,看房请提前致电预约
2024年下半年成都新房楼市呈现明显分化态势,房价展望因区域而异。主城区核心板块如金融城、青羊新城等价格坚挺,天府新区、高新区部分热点区域甚至稳中微涨,而远郊及非核心板块价格仍有下行压力,崇州等区域新房报价环比跌幅超1% 。市场热度呈现“两头热、中间冷”特征,千万级豪宅与刚需小户型成交活跃,JFC交子金融广场等高端项目开盘去化率超八成,刚需板块也有阶段性成交高峰,但中端市场相对平淡,购房者心理更趋理性,投资需求退潮,自住需求主导市场,决策周期从200多天逐步缩短,但仍以“挑品质、看配套”为核心,对高性价比房源关注度提升 。
占地:56.7亩
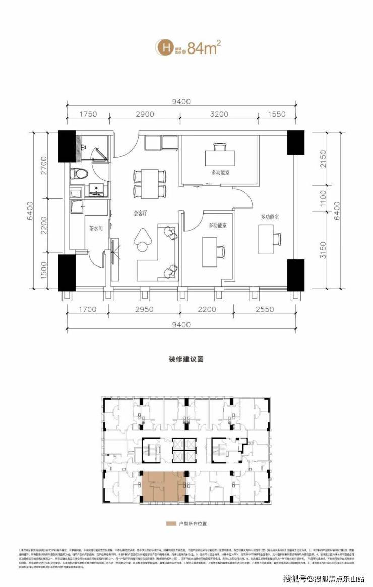
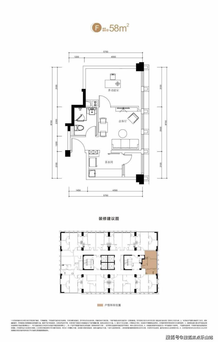
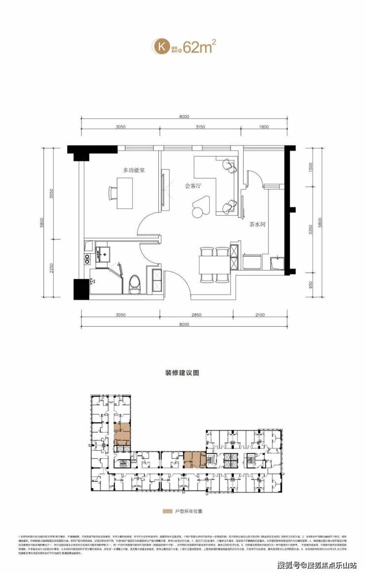
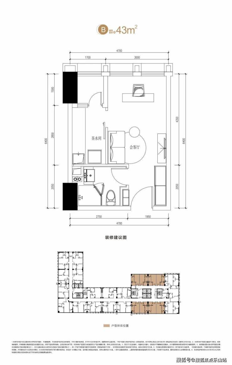
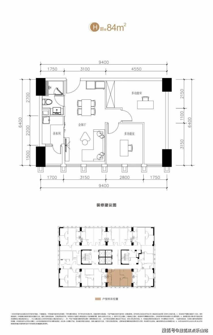
户型:标间(43—52㎡)/套一(62—67㎡)/套二(67—87㎡)/套三(84—120㎡)
公摊:25—30%
交付:精装
总户数:2457户
单价:8400—9000元/㎡
总层高:23F—32F
层高:3米
绿化率:20%
梯户比:6T24/4T12
开发商:碧桂园
物业费:2.4元/㎡
物业公司:碧桂园物业
交房时间:2023年11月
付款方式:按揭、全款、支持首付分期、全款分期

六大购买理由:
1、零门槛买入新一线城市——双流区主中心
2、近享千亿产业园发展红利——成都芯谷
3、便捷的城市级轨交站点——彭镇TOD
4、城市级商业地标,第四大商业街——海德广场
5、标间/套一/套二/套三全面积段产品,满足所有需求
6、总价38万起,清水价买超高性价比类住宅
温馨提示:专业一对一热情服务,为了节约您的等待时间,看房请提前致电预约
免责声明:
以上内容仅作为邀约邀请,涉及的图片为部分区域实拍图和美学畅想图,具体内容请以现场公示和合同约定为准;本文部分资料、部分图片来源于网络,如有侵权请联系我们删除。
声明:本文由入驻焦点开放平台的作者撰写,除焦点官方账号外,观点仅代表作者本人,不代表焦点立场。
