中建天府公馆楼盘分析-周边配套-户型图分析-总价多少-优惠多少
扫描到手机,新闻随时看
扫一扫,用手机看文章
更加方便分享给朋友
【营销中心】:028-62585717「销售热线」
【置业顾问】:13518186441「微信同步」
【置业顾问】:13668208612「微信同步」
温馨提示:专业一对一热情服务,为了节约您的等待时间,看房请提前致电预约
当下低迷市场和溃败的信心所笼罩,没有心思对这一轮房地产调整后的行业走向,进行预判和猜想。常识告诉我们,没有永远下行的市场,即使美国,日本房价当年跌跌不休,如今也迎来持续多年的上涨。而在中国,相对理论中枢,当下中国房地产的确“超跌”了,未来理应有一个反弹的空间。
【基础参数】:开发商:成都埃德凯森置业有限公司,物业公司: 中建三局物业管理公司,占地面积: 362亩,容积率:整个地块4.0,办公车位:1244个,物管费:4.5元/㎡; ,商业性质:40年产权,通水、电,交房标准:清水,付款方式:首付5成/全款,外销证:有
【在售产品】:10-5#soho,层高: 29层/3米,梯户比:5梯20户,单套建面:44-59㎡(主力面积44㎡),建面报价:10000-12000,交房时间:2024.6月底
8-3#soho:层高: 28层/3米,梯户比:5梯24户,单套建面:38-42-57㎡(主力面积42㎡),建面报价:10000-12000,交房时间:2024年12月底
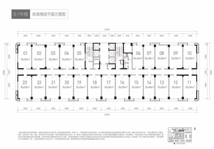
8-1#loft:层高: 22层/4.2米,梯户比:5梯23户,单套建面:44-55㎡(主力面积55㎡),建面报价:12000-13000,交房时间:2024.12月底
商墅信息:所属板块:新川板块,开发商:央企中建三局(成都地标建筑缔造者:IFS、太古里、来福士广场、T2航站楼),物业公司:中建壹品物业(2022中国物业服务百强企业),物业费:6元/㎡,价格:280万起(每套面积价格均有差别 为定价销售 优惠现场沟通),在售楼栋:11-22#,11-13#为开发式商业别墅,14-22#为围合式商业别墅,楼层及梯户比:1梯1户,层高: 约6米层高(部分户型层高5.7m),面积: 建面约86-237㎡ ,交付标准:清水交付,交房时间:2023年底(合同交房时间为2024年3月)
11-13#平面图以及销控
【基础配套】
交通:四横四纵三轨道两TOD站点
四横分别是:应龙路、新通大道、中和大道、成都绕城高速;四纵分别是:天府大道、红星路南延线、中柏大道、成自泸高速;
三条地铁线(1号线-华府大道站,直线距离约1.2KM;6号线-;29号线-规划中)),门口多条公交线路257/507/510/195/T36
2大TOD站点(陆肖站-成都首个TOD项目;新川科技园南站(已规划)。立体交通路网,出行非常方便;
教育:板块内22所学校,高新新华学校、新川一中、新川一幼、金苹果幼儿园、金苹果锦城一中等未来将带来更多师生、家长等多重群体覆盖,衍生租赁、陪读等庞大的关联消费需求;
医疗:四川省人民医院高新分院、四川省中西医结合医院高新分院(在建);
生态:3公园环绕,新川之心中央公园800多亩,是成都第一个5G生态智慧公园;新怡公园,占地约100亩;新川湿地公园,占地约198亩。
【营销中心】:028-62585717「销售热线」
【置业顾问】:13518186441「微信同步」
【置业顾问】:13668208612「微信同步」
温馨提示:专业一对一热情服务,为了节约您的等待时间,看房请提前致电预约
免责声明:
以上内容仅作为邀约邀请,涉及的图片为部分区域实拍图和美学畅想图,具体内容请以现场公示和合同约定为准;本文部分资料、部分图片来源于网络,如有侵权请联系我们删除。
声明:本文由入驻焦点开放平台的作者撰写,除焦点官方账号外,观点仅代表作者本人,不代表焦点立场。
