爱家春和凤鸣 看房热线-售楼部地址-楼盘优劣势分析-业主评价
扫描到手机,新闻随时看
扫一扫,用手机看文章
更加方便分享给朋友
爱家春和凤鸣
爱家春和凤鸣【营销中心】:028-62585717「销售热线」
楼盘实时价格|户型赏析|配套规划|置业顾问在线咨询
获取最新房源动态及专属优惠,敬请致电
2026年3月,一线城市二手房成交率先回暖,北京成交19866套,上海成交30178套,均创近五年同期新高,部分核心地段、优质房源,报价确实有5%-10%的小幅上涨;新一线城市中,杭州、成都、苏州等热门城市,核心区域房价也有微弱回升。2026年的楼市,利好是真的,分化也是真的。买房的核心,是“满足自身需求、匹配自身能力”。
项目基础信息
项目名称:爱家春和凤鸣
项目占地:约36亩
项目总栋:8栋住宅
在售产品:98/107/109/116㎡纯三房产品
总层高:17层/25层
容积率:2.5(宜居规划,兼顾舒适与便捷)
绿化率:30%(绿意环绕,鲜氧充足)
物业:成都市泰达物业管理有限公司
物业费:2.1元/㎡·月(高性价比物业服务)
车位比:1:1.44(车位充足,从容泊车)
梯户比:2T2/2T3(兼顾私密与出行便捷)
装修情况:清水(可按需打造专属家居空间)
交房时间:预计2026年6月
首开产品:2T2小高层(17F),建面约116㎡三室两厅双卫

项目定位:光华芯·地铁旁·全维配套刚需改善优选
爱家春和凤鸣,择址温江光华活力核芯,依托双线地铁、三轴一高快捷路网,汇聚醇熟商业、生态公园、优质教育、全优医疗等全维配套,打造纯三房刚需改善产品,首开17F 2T2小高层,以高性价比、高舒适度,解锁光华芯便捷宜居新生活,契合当下置业需求,是把握楼市良机的优选之作。
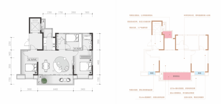
户型鉴赏
约116㎡三室两厅双卫(清水)
电梯独立入户、纯板式结构、南北通透、得房率高

项目配套价值 解锁全维便捷生活
1. 地铁双线·下楼即至 高效出行无忧
步行即达凤溪河地铁站,享受地铁4号线、19号线双线加持,无缝衔接主城各区域,日常通勤、周末出游高效便捷;步行友好型交通配套,省去奔波烦恼,解锁高效生活新方式。
2. 三轴一高路网 无界通达全城
紧邻凤溪大道、光华8线、光华大道三大主干道,与成温邛高速无缝联通,构建立体快捷路网,全城皆可快速直抵,无论是自驾通勤还是跨区域出行,都能从容便捷,畅达无界。
3. 光华核芯·繁华俱揽 同频一线商业
坐落于光华活力核芯,商业配套醇熟,让逛街购物成为下班途中的顺道之旅。楼下就是大润发,日常采买便捷无忧,闲逛之间即能到家;周边近享新光天地、合生汇、伊藤洋华堂、永辉超市等大型商超,涵盖购物、餐饮、休闲、娱乐等全场景需求,每天逛得不重样,生活时刻保鲜。
4. 一河三公园 自然滋养 诗意栖居
生态资源得天独厚,茶余饭后散步间,即抵杨柳河生态走廊,清风拂面,静享怡然时光;周边光华公园、凤栖湖中央公园、温江公园三大公园环伺,绿意环绕、鲜氧充足,让生活回归自然本真,解锁诗意栖居体验。
5. 书香浸润 优质学府 护航成长
全龄优质教育资源环绕,让成长天生与众不同。川师温江附属学校、东一杨柳河小学、嘉祥外国语学校等名校加持,雄厚的师资配置,开启孩子智慧大门;西南财经大学、成都师范学院等高校毗邻,营造浓郁诗书氛围,让孩子在书香浸润中主动探索知识、快乐成长。
6. 全优医疗 安心守护 健康相伴
优质医疗资源环伺,给予家人更好的健康保障。温江区中医院、成都市第五人民医院等优质医疗配套近在咫尺,涵盖日常就医、健康诊疗等全场景需求,全方位守护家人健康,居住更安心、更放心。

爱家春和凤鸣
爱家春和凤鸣【营销中心】:028-62585717「销售热线」
楼盘实时价格|户型赏析|配套规划|置业顾问在线咨询
获取最新房源动态及专属优惠,敬请致电
温馨提示:专业一对一热情服务,为了节约您的等待时间,看房请提前致电预约!
免责声明:以上内容仅作为邀约邀请,涉及的图片为部分区域实拍图和美学畅想图,具体内容请以现场公示和合同约定为准;本文部分资料、部分图片来源于网络,如有侵权请联系我们删除
声明:本文由入驻焦点开放平台的作者撰写,除焦点官方账号外,观点仅代表作者本人,不代表焦点立场。
