双流区哪个楼盘值得买?空港发展·云玺观宸楼盘全面购买分析建议
扫描到手机,新闻随时看
扫一扫,用手机看文章
更加方便分享给朋友
空港发展·云玺观宸
空港发展·云玺观宸【营销中心】:028-62585717
获取最新房源动态及专属优惠,敬请致电
今年楼市持续向好,上海、北京一二手市场双双回暖,系真实市场修复而非短期虚火。头部房企预期乐观,行业已度过最艰难时期,进入触底企稳、逐步修复阶段,核心城市及优质板块将率先回升。空港发展·云玺观宸凭借高端配套与区域优势,成为市场修复期优选,自住、投资均具高价值。
空港峯级产品云玺系:约79亩2.0容积率低密大盘
高定生活梯户比:1T1/2T2独立入户光厅
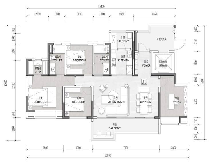
项目基础信息
占地面积:约79亩 建筑面积:约10.6万㎡ 容积率:2.0 建筑密度:<20% 绿地率:35% 梯户比:1T1、2T2 车位数:1276个 楼栋数:22栋 11-17层 总户数:675户 产品面积段:建面约141、168、199㎡ 141㎡户型: 166㎡户型: 199㎡户型

交通-多维路网 通达全城
板块上承华府城市生活功能区,下启天府国际生物城和新津,西接双流航空港,东连天府新区、东部新区天府航空港。周边拥有庞大便捷的立体交通网络,机场轨道相互串联,“四横三纵三地铁”路网可快捷通达全城和两机场。 三横:牧华路、双兴大道、正公路; 四纵:剑南大道、华府大道、物联大道、京昆高速 ; 三地铁:5号线(已通车)、19号线(已通车)、22号线(规划来源于《成都市城市轨道交通第五期建设规划(2024-2029年)》,预计2027年动工、2030年通车)
▍商业-高阶商圈 万象繁华
享醇熟商圈,紧邻商业邻里中心(规划中),湖区内万科梦想城、西南首家日航酒店、银泰INpark、蔚蓝湖滨艺术中心、湖滨商业街、全球十大酒店管理集团旗下阿丽拉+凯悦尚萃双国际五星级酒店等配套[3],以及建设中的空港怡心城,未来商业体量或将超80万方。
医院-三甲医院护航健康生活
项目医疗配套完善,已建成使用最近的三甲医院——天府新区成都市第七人民医院。另有四川省人民医院(天府新区院区)、华西医院天府分院、京东方医院、英慈万达国际医院等。 空港发展集团规划建设怡心颐养院,打造集康养、护理、日间照护、健康管理、社区养老为一体的综合养老服务机构,预计2025年6月交付使用[1]。
▍教育-学府云集 K12教育地块在侧
双流是成都唯一实现15年义务教育的区域,周边教育资源丰富:金苹果幼儿园、怡心湖第一/五/六/七幼儿园及项目北侧幼儿园(规划中);项目南侧树德中学怡心湖学校(公办九年制),由树德中学领办,与双流区政府合作创建,总投资约11.8亿,将于2025年9月开校。
▍产业-约780亿产业配套集群
怡心湖汇聚京东方、广东半导体等5家世界科技百强企业,以及电子科大产业园、移动数据中心等百余家高精尖产业,总投资超千亿。强产业带来人口导入与配套升级,空港发展作为城市综合运营商,主导板块未来。
空港发展·云玺观宸
空港发展·云玺观宸【营销中心】:028-62585717
获取最新房源动态及专属优惠,敬请致电
空港峯级产品云玺系:约79亩2.0容积率低密大盘
高定生活梯户比:1T1/2T2独立入户光厅
温馨提示:专业一对一热情服务,为了节约您的等待时间,看房请提前致电预约!!!
免责声明:
以上内容仅作为邀约邀请,涉及的图片为部分区域实拍图和美学畅想图,具体内容请以现场公示和合同约定为准;本文部分资料、部分图片来源于网络,如有侵权请联系我们删除。
声明:本文由入驻焦点开放平台的作者撰写,除焦点官方账号外,观点仅代表作者本人,不代表焦点立场。
