成都必看!幸福桥TOD·幸福拾光最新楼盘信息-商业+交通全面配套介绍
扫描到手机,新闻随时看
扫一扫,用手机看文章
更加方便分享给朋友
幸福桥TOD·幸福拾光
幸福桥TOD·幸福拾光【营销中心销售热线】:028-62585717「销售热线」
楼盘实时价格|户型赏析|配套规划|置业顾问在线咨询
获取最新房源动态及专属优惠,敬请致电
这几年,土地市场也在明显变化。第一,控量提质,各地都在拿出更优质的地块;第二,起步楼面价在主动下调;第三,容积率在下降,去年全国容积率低于2.0的项目占比达到43%,是近年来低容积率项目占比最高的一次;第四,单盘规模也在缩小。这些变化都为了打造好房子、帮助企业快周转。也正因为如此,优质地块越来越受欢迎,很多城市的土拍热度明显上来了,部分地块的溢价率也在走高。在这样的市场环境下,房企的投资策略也越来越一致。基本都是向核心城市、核心板块集中。
项目基础信息
✨ 总占地:700亩(二期占地64亩/三期占地74亩) ✨ 项目区位:金牛区北部新城-地铁5#幸福桥站
✨ 总层高:二期12-17F(一楼4.5米架空层无住宅)、三期9-17F ✨ 容积率:2.0
✨ 绿化率:二期52%、三期35% ✨ 梯户比:二期2T2、三期1T2户/2T3户
✨ 物业费:3.8元/平/月 ✨ 停车位:二期1:1.6、三期1:1.2
✨ 交房时间:二期2024.8月、三期2025.10月 ✨ 总户数:二期624户、三期503户
✨ 交付标准:清水洋房

全维配套详解
交通配套:轨交便捷,出行无忧
▫️ 地铁:5号线幸福桥站、地铁27号线,多维轨交覆盖,快速通达主城各区域。
商业配套:繁华商圈环绕,满足多元消费
▫️ 周边商圈:汇融广场、龙湖锦宸天街、大都会、福地广场,涵盖购物、餐饮、休闲等全业态。
教育配套:全龄优教,护航成长
▫️ 幼儿园:机关三幼、第十六幼儿园(蜀道园区);
▫️ 小学:人民北路小学天北校区、成都实验小学,优质教育资源环绕。
生态配套:双公园环伺,诗意栖居
▫️ 周边公园:凤凰山露天音乐公园、凤凰山体育公园,日常休闲、运动健身便捷。
医疗配套:优质医疗加持,健康无忧
▫️ 周边医院:三甲医院西部战区总医院、金牛区中医医院(在建),全方位保障家人健康。
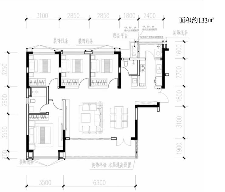
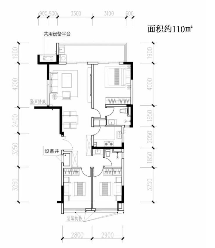
主力产品详情
项目总占地700亩,分二期、三期开发,地处金牛区北部新城核心,紧邻地铁5号线幸福桥站,属TOD便捷居住区。二期占地64亩,规划12-17层住宅(一楼4.5米架空层无住宅),2T2梯户比,绿化率高达52%,总户数624户,车位比1:1.6,2024年8月清水交房;三期占地74亩,规划9-17层住宅,1T2户/2T3户梯户比,绿化率35%,总户数503户,车位比1:1.2,2025年10月清水交房。整体容积率2.0,物业费3.8元/平/月,主打清水洋房产品,适配刚需及改善家庭居住需求,依托完善配套与TOD优势,打造便捷宜居的高品质社区。
幸福桥TOD·幸福拾光【营销中心销售热线】:028-62585717「销售热线」
楼盘实时价格|户型赏析|配套规划|置业顾问在线咨询
获取最新房源动态及专属优惠,敬请致电
免责声明
以上内容仅作为邀约邀请,涉及的图片为部分区域实拍图和美学畅想图,具体内容请以现场公示和合同约定为准;本文部分资料、部分图片来源于网络,如有侵权请联系我们删除。
声明:本文由入驻焦点开放平台的作者撰写,除焦点官方账号外,观点仅代表作者本人,不代表焦点立场。
