广都鑫中心 楼盘在售信息 房子怎么样?性价比怎么样?营销中心电话
扫描到手机,新闻随时看
扫一扫,用手机看文章
更加方便分享给朋友
【营销中心】:028-62585717「销售热线」
【置业顾问】:13518186441「微信同步」
【置业顾问】:13668208612「微信同步」
楼市上半年收官!公开数据显示,成都1-6月一、二手住宅成交共计超17.6万套,同比增长15.3%。其中,新房成交53240套,较去年同期增加3180套;二手房成交占比稳固在7成,共计123247套,同比增长20407套。从结果导向来看,2025年的成都楼市无疑回稳向好。但值得注意的是,在新房和二手房成交双双“上升”背后,市场结构正经历深度重构,新的格局已悄然成形。过去几年,市场似乎已经“水涨船高式”扩张,表现为供应规模攀升带动成交上行。
🏗【项目参数】
占地面积:28.35亩
建筑面积:241470.5m
目前主售:双发天禧中心2号楼1、2单元
主力户型:57㎡
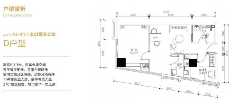
面积段:43㎡-91㎡(主力面积55-60㎡)
层高:3.25-3.3米
总高:25层(-1-4F商业、-2到-4车位、5-25F公寓)
首开楼层:13F、22F
三通:水电气三通(商业)
公摊:30%左右
梯户比:一单元6T33户 、二单位6T37户
物管费:4.9元
交付时间:合同2025年12月31日前
提前到2025年9月交房
交付标准:清水
均价:6600-7500
总价:30-68万
付款方式:一次性(整层可谈分期)
整层面积:约4100㎡ 报价3000万(15-20F)
一单元:约1930㎡ 报价1400万
二单元:约2170㎡ 报价1600万
✅开发商:成都双发君地置业有限公司
✅物业公司:四川博蕙京通物业管理有限公司
💯【核┃心┃卖┃点】
天府大道中轴线上 唯一在售总价低 小面积水电气三通产品 周边楼盘无竞品
双地铁(1号线/18号线)便捷出行
可交于 锦江国际(世界第二,亚洲第一酒店集团)旗下"欧暇地中海"酒店运营,清水交房后8个月为装修期(没有收益),装修好后6个月期间作为酒店培育期,没有保底收益,享受酒店运营分红收益(收益五五分成),从第7月开始,正式享受保底(保底30元/平)加酒店运营五五分红, 平均收益:3800-4000/月!
地处于金融城,新川科技园,天府新区中央商务区三大板块交汇的黄金金三角区域,桥头堡价值洼地,大大吸附周边区域人流。
每层自带600-700㎡高线公园。 每层只有十户享受额外赠送7-9㎡阳台空间。
‼‼核心价值:
1.地段城市中轴天府大道高新区与天府新区交界处,天府新区门户位置,不可复制。
2.稀缺性:天 府大道中轴线上稀缺小面积,低总价,水电气三通物业,低门槛,低风险,高回报。
3.交通:双 地铁物业(地铁1号线、18号线)。
4.市政配套:天府新区政务中心旁,红利 享受,极地海洋世界旅游打卡点。
5.建筑风格:新现代建筑风格更能体现项目在天府大道上的标志性。
6.人流保障 金融城,新川科技园,天府新区中央商务区金三角区域,大大吸附区域人流,为出租带来有利保障。
7.居住:超2万平米绿化,水景观,城市 广场,商业产权住宅配套,星级物业提高居住舒适度,负1层自带生活超市。
8.入驻商家:高端酒店希尔顿惠顿商旅酒店已正式签约。
9.租金高、需 求大(项目周边同户型公寓2500,写字楼租金70-120元/平米)。
10.入手即赚(项目斜 对面最新土拍:20700元/平米)。
【区域位置】
位于成都市天府新区天府大道1888号,是智能化绿色长廊的菁英空间,含有高端酒店、文化会所及中高端商业配套的综合体物业。
【交通配套】:
双地铁上盖:1号线华阳站(300米)18号线海昌路站(400米)
503 504 T205等二十条公交线路
五纵四横立体网络
五纵:剑南大道、益州大道、天府大道、梓州大道(科华路南延线)、成自泸高速;
四横:三环路、绕城高速、华阳大道、麓山大道。
【商业配套】:项目1-4楼自带30000方的上海协星星光商业体,-1楼大型超市盒马生鲜,-2至-4楼自带1661个停车位 。
项目斜对面是家乐福购物中心
项目南面300米是正在修建的三利广场,是集商务办公、综合购物、高端酒店、商业体验为一体的综合性购物广场,
项目对面还有金地三期约70万方的大型商业综合体,周边还有沃尔玛山姆会员店、红星美凯龙、富森美等综合性商业,实现人居蓝本的同时,项目在后期还会迎来配套的再一次升级。
【医疗配套】:拥有天府新区人民医院、四川石油总医院、玛利亚天府妇产儿童医院、天府新区安琪儿国际妇女儿童医院、四川省中西医结合医院、四川宝石花医院等。
【生态娱乐】:项目旁边是海昌极地海洋公园、南湖梦幻岛,南湖湿地公园等。
【优质教育】:金苹果幼儿园 天府四小 天府五小 天府实验小学 天府实验中学 天府实验外国语学校等。
✅【多变户型】
【营销中心】:028-62585717「销售热线」
【置业顾问】:13518186441「微信同步」
【置业顾问】:13668208612「微信同步」
温馨提示:专业一对一热情服务,为了节约您的等待时间,看房请提前致电预约
免责声明:
以上内容仅作为邀约邀请,涉及的图片为部分区域实拍图和美学畅想图,具体内容请以现场公示和合同约定为准;本文部分资料、部分图片来源于网络,如有侵权请联系我们删除
声明:本文由入驻焦点开放平台的作者撰写,除焦点官方账号外,观点仅代表作者本人,不代表焦点立场。
