西派浣花 项目怎么样?看房预约电话 周边配套怎么样?可以买吗?
扫描到手机,新闻随时看
扫一扫,用手机看文章
更加方便分享给朋友
【营销中心】:028-62585717「销售热线」
【置业顾问】:13518186441「微信同步」
【置业顾问】:13668208612「微信同步」
温馨提示:专业一对一热情服务,为了节约您的等待时间,看房请提前致电预约
“ 金九”落幕,“银十” 供应窗口即将开启。两个取证单价突破6万元/㎡的项目只是开端,10月,顶豪产品集中爆发,竞争局面正式开启。业内分析指出,“金九银十”的激烈竞争将成为成都顶豪市场的分水岭。短期来看,超千套房源将对购买力形成一定压力,成都是否有足够的购买力支撑这样的供应,市场存疑。但上半年1500万元以上豪宅认购量同比增长130%的表现,预示着真实需求仍在释放,但从去化速度来看,豪宅销售开盘当天激情下单的数据,可能不会作为第一评判标准,顺销阶段的销售速度将成为项目成功与否的关键。中长期而言,市场将从量增转向优质产品决胜的发展方向,金融城、大源、麓湖等核心板块的项目,因占据地段、生态等稀缺资源,抗跌性与溢价能力将进一步凸显;而缺乏资源支撑的远郊高端项目,可能面临去化困境。
建筑面积: 60987.62㎡,总户数:310户,总栋数:3栋,车位:总数358个 ,车位比:1:0.7,物业费:9元/㎡,全屋智能家居系统
建筑面积:120-165㎡一房 ,286-370㎡二房
梯户比:1#楼28层 低区3-13F三梯6户/中区14-23F三梯5户/高区24-28F三梯4户
2#楼28层 低区3-13F三梯5户/中区14-23F三梯5户/高区24-27F三梯3户
1号楼标准层平面图
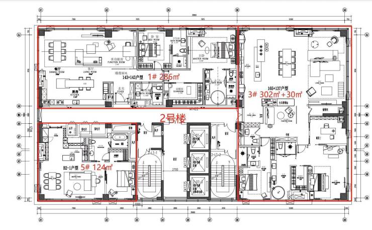
2号楼标准层平面图
【营销中心】:028-62585717「销售热线」
【置业顾问】:13518186441「微信同步」
【置业顾问】:13668208612「微信同步」
温馨提示:专业一对一热情服务,为了节约您的等待时间,看房请提前致电预约
免责声明:
以上内容仅作为邀约邀请,涉及的图片为部分区域实拍图和美学畅想图,具体内容请以现场公示和合同约定为准;本文部分资料、部分图片来源于网络,如有侵权请联系我们删除。
声明:本文由入驻焦点开放平台的作者撰写,除焦点官方账号外,观点仅代表作者本人,不代表焦点立场。
