爱家春和凤鸣 楼盘房价 优惠信息 价格区间 户型面积区间
扫描到手机,新闻随时看
扫一扫,用手机看文章
更加方便分享给朋友
【营销中心】:028-62585717「销售热线」
【置业顾问】:13518186441「微信同步」
【置业顾问】:13668208612「微信同步」
温馨提示:专业一对一热情服务,为了节约您的等待时间,看房请提前致电预约!!!
12月,大成都商品住宅供销价持续上涨,月度成交面积达全年最高。主城区近三个月成交持续上涨,12月备案面积超70万方,环比大涨约29.7%,成交均价回升至27437元/㎡。天府新区的住宅供销价全面上涨,但全年来看,新区的供销整体下降了约3成。近郊12月供应量增加,成交环比量跌价涨,全年成交同比下降约2成。远郊近4月供销量表现持续上涨,受新津津城雅苑、翡翠滨江苑、旭辉天府未来中心三个项目集中备案影响,价格反弹至年度高位。整个下半年,成都住宅存量去化效果显著,截至12月存量1751万㎡,出清周期15.7个月。在新政作用持续推动下,12月二手房成交量跃居top1,新房二手房市场热度持续。

项目基础信息
项目名称:爱家春和凤鸣;项目占地:约36亩;项目总栋:8栋住宅;在售产品:98/109/107/116㎡;总层高:17/25层
容积率:2.5;绿化率:30%;物业:成都市泰达物业管理有限公司;物业费:2.1元/㎡/月;车位比:1:1.44;梯户比:2T2/2T3;装修情况:清水;交房时间:预计2026年6月
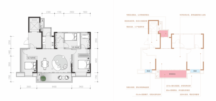
B1:约116㎡三室两厅双卫(清水)
电梯独立入户、纯板式结构、南北通透、得房率高

项目配套价值
1、地铁双线•下楼即至,步行友好的高效生活配套
步行即至的凤溪河地铁站,享受地铁4号线、19号线双线
2、三轴一高快捷路网,高效出行•无界全城
邻凤溪大道,光华8线,光华大道,和成温邛高速联通,全城皆能快速直抵。
3、光华活力核芯•繁华俱揽,同频一线商业能级
让逛街购物也能成为下班途中的顺道之旅。楼下就是大润发,闲逛之间就已到家。
繁华近享新光天地,合生汇,伊藤洋华堂,永辉超市等,每天逛得不重样,生活时刻保鲜。
4、一河三公园自然滋养,静赏时光漫步
茶余饭后的散步间,即抵杨柳河生态走廊,清风拂面,静享怡然。周边光华公园,凤栖湖中央公园,温江公园环伺,让生活回归自然。
5、书香诗礼•优质学府领衔,让成长天生与众不同
川师温江附属学校,东一杨柳河小学,嘉祥外国语学校等,雄厚的师资配置,开启孩子们智慧的大门。西南财经大学,成都师范学院等大学高校,营造浓郁的诗书氛围,让孩子们更主动的去享受知识。
6、安心守护•健康陪伴,给予家人更好的医靠
温江区中医院,成都市第五人民医院等,为健康生活守护。

【营销中心】:028-62585717「销售热线」
【置业顾问】:13518186441「微信同步」
【置业顾问】:13668208612「微信同步」
温馨提示:专业一对一热情服务,为了节约您的等待时间,看房请提前致电预约
免责声明:
以上内容仅作为邀约邀请,涉及的图片为部分区域实拍图和美学畅想图,具体内容请以现场公示和合同约定为准;本文部分资料、部分图片来源于网络,如有侵权请联系我们删除
声明:本文由入驻焦点开放平台的作者撰写,除焦点官方账号外,观点仅代表作者本人,不代表焦点立场。
