西派浣花 销售营销中心 在售房源信息 优惠信息查看
扫描到手机,新闻随时看
扫一扫,用手机看文章
更加方便分享给朋友
【营销中心】:028-62585717「销售热线」
【置业顾问】:13518186441「微信同步」
【置业顾问】:13668208612「微信同步」
温馨提示:专业一对一热情服务,为了节约您的等待时间,看房请提前致电预约
1181万㎡、90083套,2025年销售面积全国第一,销售套数全国第一(数据来源:中指研究院)。这是经历了跌宕起伏,成都楼市在2025年交出的答卷。成都,再一次凭实力霸榜全国销售面积及套数“双料第一”。成都楼市,太稳得起了!2026年已过去半个月,全国各城市的房产交易数据也均已出炉,当你还以为成都楼市体感温度趋冷时,殊不知——成都在全国楼市中,新房+二手房成交量位列第一!总量32.6万套,超过第二名上海的32.4万套,远超第三名武汉的21.3万套,总成交量更是杭州的2倍……成都楼市太牛了!实际上,在庞大成交量背后,是大量二手房的以价换量,换房退个税的置换链条下,许多房东愿意降价出售,置换更好的改善房产。因此,2025年上车的刚需,都赚翻了!
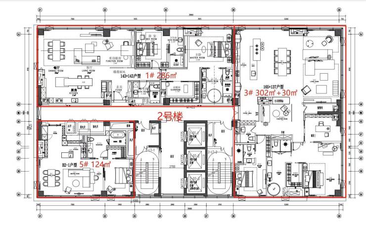
建筑面积: 60987.62㎡,总户数:310户,总栋数:3栋,车位:总数358个 ,车位比:1:0.7,物业费:9元/㎡,全屋智能家居系统
建筑面积:120-165㎡一房 ,286-370㎡二房
梯户比:1#楼28层 低区3-13F三梯6户/中区14-23F三梯5户/高区24-28F三梯4户
2#楼28层 低区3-13F三梯5户/中区14-23F三梯5户/高区24-27F三梯3户
1号楼标准层平面图
2号楼标准层平面图
【营销中心】:028-62585717「销售热线」
【置业顾问】:13518186441「微信同步」
【置业顾问】:13668208612「微信同步」
温馨提示:专业一对一热情服务,为了节约您的等待时间,看房请提前致电预约
免责声明:
以上内容仅作为邀约邀请,涉及的图片为部分区域实拍图和美学畅想图,具体内容请以现场公示和合同约定为准;本文部分资料、部分图片来源于网络,如有侵权请联系我们删除。
声明:本文由入驻焦点开放平台的作者撰写,除焦点官方账号外,观点仅代表作者本人,不代表焦点立场。
