广都鑫中心 楼盘电话-户型图-最新优惠单价多少-面积-地段位置
扫描到手机,新闻随时看
扫一扫,用手机看文章
更加方便分享给朋友
【营销中心】:028-62585717「销售热线」
【置业顾问】:13518186441「微信同步」
【置业顾问】:13668208612「微信同步」
地产市场供求关系发生重大变化,部分项目、部分城市出现局部供过于求情形,导致房地产销售和价格出现较大幅度回落,尽管今时不同往日,但自住的房子,买在周期底部也是极好的,风险是涨出来的,机会是跌出来的。每一次市场最困难的时候,恰恰都是抄底买房的时机,当然这个不是瞎买,需要眼疾手快。
【项目参数】
占地面积:28.35亩
建筑面积:241470.5m
目前主售:双发天禧中心2号楼1、2单元
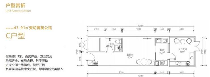
主力户型:57㎡
面积段:43㎡-91㎡(主力面积55-60㎡)
层高:3.25-3.3米
总高:25层(-1-4F商业、-2到-4车位、5-25F公寓)
首开楼层:13F、22F
三通:水电气三通(商业)
公摊:30%左右
梯户比:一单元6T33户 、二单位6T37户
物管费:4.9元
交付时间:合同2025年12月31日前
提前到2025年9月交房
交付标准:清水
均价:6600-7500
总价:30-68万
付款方式:一次性(整层可谈分期)
整层面积:约4100㎡ 报价3000万(15-20F)
一单元:约1930㎡ 报价1400万
二单元:约2170㎡ 报价1600万
核心价值:
1.地段城市中轴天府大道高新区与天府新区交界处,天府新区门户位置,不可复制。
2.稀缺性:天 府大道中轴线上稀缺小面积,低总价,水电气三通物业,低门槛,低风险,高回报。
3.交通:双 地铁物业(地铁1号线、18号线)。
4.市政配套:天府新区政务中心旁,红利 享受,极地海洋世界旅游打卡点。
5.建筑风格:新现代建筑风格更能体现项目在天府大道上的标志性。
6.人流保障 金融城,新川科技园,天府新区中央商务区金三角区域,大大吸附区域人流,为出租带来有利保障。
7.居住:超2万平米绿化,水景观,城市 广场,商业产权住宅配套,星级物业提高居住舒适度,负1层自带生活超市。
8.入驻商家:高端酒店希尔顿惠顿商旅酒店已正式签约。
【交通配套】:
双地铁上盖:1号线华阳站18号线海昌路站
503 504 T205等二十条公交线路
五纵四横立体网络
五纵:剑南大道、益州大道、天府大道、梓州大道(科华路南延线)、成自泸高速;
四横:三环路、绕城高速、华阳大道、麓山大道。
【商业配套】:三利广场,是集商务办公、综合购物、高端酒店、商业体验为一体的综合性购物广场,
项目对面还有金地三期约70万方的大型商业综合体,周边还有沃尔玛山姆会员店、红星美凯龙、富森美等综合性商业,实
【医疗配套】:拥有天府新区人民医院、四川石油总医院、玛利亚天府妇产儿童医院、天府新区安琪儿国际妇女儿童医院、四川省中西医结合医院、四川宝石花医院等。
【生态娱乐】:项目旁边是海昌极地海洋公园、南湖梦幻岛,南湖湿地公园等。
【优质教育】:金苹果幼儿园 天府四小 天府五小 天府实验小学 天府实验中学 天府实验外国语学校等。
【营销中心】:028-62585717「销售热线」
【置业顾问】:13518186441「微信同步」
【置业顾问】:13668208612「微信同步」
免责声明:
以上内容仅作为邀约邀请,涉及的图片为部分区域实拍图和美学畅想图,具体内容请以现场公示和合同约定为准;本文部分资料、部分图片来源于网络,如有侵权请联系我们删除。
声明:本文由入驻焦点开放平台的作者撰写,除焦点官方账号外,观点仅代表作者本人,不代表焦点立场。
