西派浣花踩盘笔记-西派浣花样板间视频-西派浣花项目电话号码
扫描到手机,新闻随时看
扫一扫,用手机看文章
更加方便分享给朋友
【营销中心】:028-62585717「销售热线」
【置业顾问】:13518186441「微信同步」
【置业顾问】:13668208612「微信同步」
温馨提示:专业一对一热情服务,为了节约您的等待时间,看房请提前致电预约
近两年房企纷纷提高对实景示范区的重视度。有的将实景示范区列为城市总的考核指标之一;有的在建立评选机制,对做得好的实景示范区进行奖励,在内部形成你你追我赶的氛围;更多的房企,通过建立实景示范区的标准化体系,从展示的场景、要素等方面提升实景示范区的呈现效果。地产项目的实景示范区整体水平明显提升,此外,追求“全维实景”,展示范围更全面、深入。展示的模块包括但不限于入口大门、主题景观、建筑立面、归家动线、架空层、地库、会所、样板间等等。
建筑面积: 60987.62㎡,总户数:310户,总栋数:3栋,车位:总数358个 ,车位比:1:0.7,物业费:9元/㎡,全屋智能家居系统
建筑面积:120-165㎡一房 ,286-370㎡二房
梯户比:1#楼28层 低区3-13F三梯6户/中区14-23F三梯5户/高区24-28F三梯4户
2#楼28层 低区3-13F三梯5户/中区14-23F三梯5户/高区24-27F三梯3户
1号楼标准层平面图
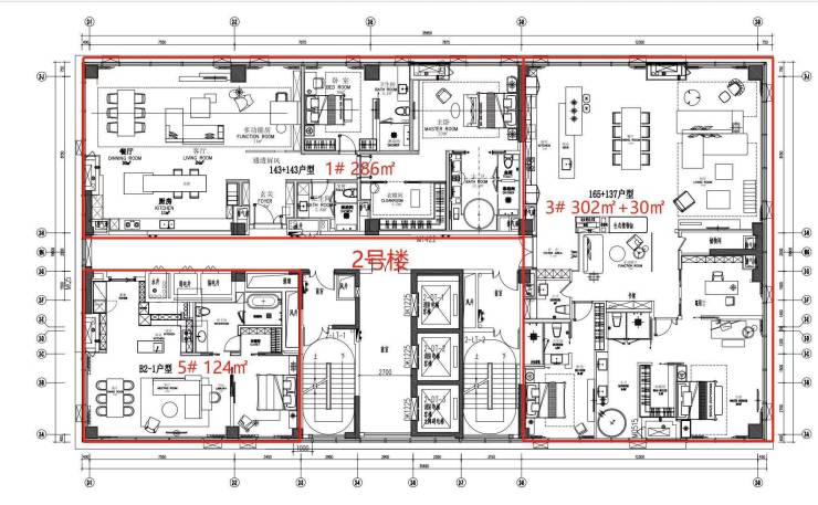
2号楼标准层平面图
【营销中心】:028-62585717「销售热线」
【置业顾问】:13518186441「微信同步」
【置业顾问】:13668208612「微信同步」
温馨提示:专业一对一热情服务,为了节约您的等待时间,看房请提前致电预约
免责声明:
以上内容仅作为邀约邀请,涉及的图片为部分区域实拍图和美学畅想图,具体内容请以现场公示和合同约定为准;本文部分资料、部分图片来源于网络,如有侵权请联系我们删除。
声明:本文由入驻焦点开放平台的作者撰写,除焦点官方账号外,观点仅代表作者本人,不代表焦点立场。
