远大海湾云锦 楼盘户型好不好 品质怎么样 交通出行配套怎么样
扫描到手机,新闻随时看
扫一扫,用手机看文章
更加方便分享给朋友
【营销中心】:028-62585717「销售热线」
【置业顾问】:13518186441「微信同步」
【置业顾问】:13668208612「微信同步」
2025年10-11月成都新房市场呈现“总量平稳、区域分化”特征,政策红利下核心板块与远郊区域表现迥异。两个月新房累计成交约1.8万套,与去年同期基本持平,但月度波动明显,11月全城新房均价15947元/㎡,环比微降0.54%。成交主力集中在改善型产品,120-144㎡户型占比超60%,武侯、锦江两区表现突出,均价分别达28208元/㎡、35479元/㎡,且实现价格微涨。而青羊、温江等区域价格回调明显,蒲江跌幅达5.27%,远郊区域以价换量成为主流。供应端延续“提质缩量”趋势,优质地块项目去化率领先,刚需盘去化压力凸显。
开发商:四川远大生物科技有限公司
占地面积:100785.63平方米
建筑面积:762349.19平方米
容积率:4.98
绿地率:30%
停车位:5919(1:2.16)
车位大小:2.6*5.5
总户数:2736户
楼栋总数:20栋住宅,3栋商业(自持)
物业公司:成都远大创新物业管理有限责任公司物业费:5.5元/平方米/月
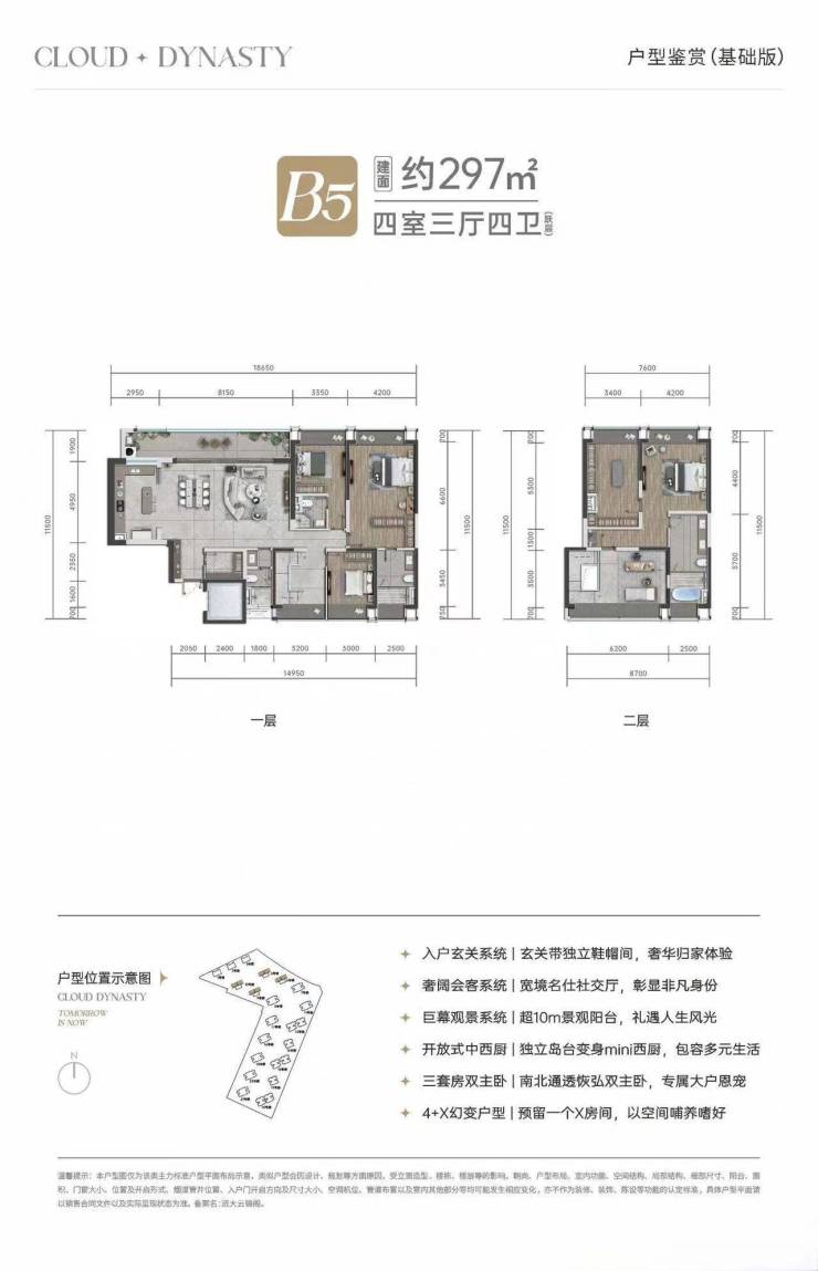
一期户型图
二期户型图
【营销中心】:028-62585717「销售热线」
【置业顾问】:13518186441「微信同步」
【置业顾问】:13668208612「微信同步」
温馨提示:专业一对一热情服务,为了节约您的等待时间,看房请提前致电预约
免责声明:
以上内容仅作为邀约邀请,涉及的图片为部分区域实拍图和美学畅想图,具体内容请以现场公示和合同约定为准;本文部分资料、部分图片来源于网络,如有侵权请联系我们删除
声明:本文由入驻焦点开放平台的作者撰写,除焦点官方账号外,观点仅代表作者本人,不代表焦点立场。
