科创岛U6 地段 +产品分析+ 购买建议 + 销售中心电话号码
扫描到手机,新闻随时看
扫一扫,用手机看文章
更加方便分享给朋友
科创岛U6 项目详情、核心卖点及全维度配套
科创岛U6 【营销中心】:028-62585717「销售热线」
、项目核心基础信息
【基础参数】:
• 【物业类型】:住宅
• 【建筑类型】:小高层
• 【占地面积】:81353.40㎡
• 【建筑面积】:17.73万方
• 【开发商】:成都天投鹿溪智谷园区建设有限公司
• 【总户数】:836户(二批次214户)
• 【容积率】:2.27(低密布局,保障居住舒适度与空间通透感)
• 【绿化率】:25%(绿意点缀,与湖岛生态呼应,鲜氧环绕)
• 【车位比】:2272个(车位充足,户均车位配比优越,满足日常停车及访客需求)
• 【楼层状况】:7-16F(小高层规制,视野开阔,兼顾私密性与居住便捷性)
• 【楼栋总数】:4栋
• 【在售楼栋】:S5#(主力在售楼栋,席位稀缺)
• 【梯户比】:2T2(高端改善标配,专属出行礼遇,保障居住私密性与出行效率)
• 【所属区域】:天府新区-成都天府新区兴隆湖成都科创生态岛
• 【产权年限】:70年(住宅产权,保障长期居住权益)
• 【物业费】:3.98元/㎡(专业物业服务,护航高端居住体验)
• 【交房时间】:2025年6月(准现房呈现,无需漫长等待,置业更安心)
• 【交付标准】:精装(最终以开发商信息为准,省去装修繁琐,实现轻松入住)
【产品核心信息】:
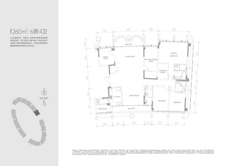
• 【产品面积】:210㎡-280㎡(阔尺空间,适配多元高端居住需求)
【户型细分及亮点】(全系户型采用“科创家居”理念,预留智能家居接口,部分房源享湖岛双景观视野):
1. 约210㎡(三室三卫):三开间朝南,主卧套房+双次卧设计,配备独立家政间,约6米横厅搭配双阳台配置,兼顾社交功能与居住私密性,空间通透开阔,尽显舒适格调;
2. 约243㎡(五室四卫):四室+多功能书房布局,双套房设计,满足多代同堂居住需求;中西双厨布局,兼顾实用与格调,约8米景观阳台,推窗尽揽湖岛盛景,解锁高端居住体验;
3. 约280㎡(五室四卫,楼王户型):配置独立玄关+工人房,彰显尊崇格调;270°转角厅设计,视野无界,尽揽湖岛生态风光;主卧配备专属衣帽间+双台盆浴室,奢享阔尺空间,适配塔尖客群高端居住需求。
四、项目核心卖点(五大核心优势,定义湖岛高端人居)
1. 稀缺湖岛定位:择址成都科创生态岛,一面临湖、三面环水,私享约6500亩兴隆湖生态景观和约4500亩鹿溪河湿地公园,全球甄稀公园住区,生态优势得天独厚,解锁岛居生活新体验;
2. 高端产品规制:210-280㎡扎哈岛居大平层,7-16F小高层、2T2梯户比,阔尺空间布局,全系科创家居理念,部分房源享湖岛双景观,精准匹配高端改善、高知圈层客群;
3. 精装省心交付:精装交付(最终以开发商信息为准),省去装修繁琐流程,适配高端客群高效、便捷的居住需求,实现轻松入住;
4. 全维配套醇熟:交通、医疗、教育配套顶尖,多重立体交通网络通达全域,3大华西系医疗护航,TOP级全龄教育环绕,一站式满足高端居住、健康、教育等多元需求;
5. 实力开发商加持+生态科技赋能:由成都天投实力开发,品质有保障;秉持绿色低碳营城理念,打造国际领先的集中供能系统,同时坐享科创生态岛产业红利,资产保值增值潜力凸显。
五、全维度高端配套,解锁湖岛便捷生活
1. 交通配套:多重立体路网,达观世界便捷出行
轨道交通、城市交通、高速公路、国际机场等重要交通枢纽咫尺环伺,构建高效立体出行网络,实现整岛到全城、国际出行的无缝串联:
• 轨道交通:已开通地铁18号线兴隆站、19号线,规划16号线成都科创生态岛站(预计2024年开工),轨交出行便捷高效,快速衔接全城核心板块;
• 纵横路网:科学城北路、科学城中路、天府大道、梓州大道、蓉遵高速、益州大道环绕,自驾出行畅通无阻,通达全域;
• 国际机场:天府国际机场、双流国际机场咫尺可达,无缝衔接全球,满足高端客群国际出行需求。
2. 医疗配套:3大华西系加持,健康生活高规保障
华西作为全球前茅、中国第二大医疗资源地,项目周边3大华西系医疗机构近而不临,构建全维度健康守护体系,为全家人的健康提供高规格保障:
四川大学华西天府医院、天府华西牙科医院、华西附二院健康管理中心,涵盖综合医疗、专科医疗、高端健康管理等全类型服务,就医便捷,健康无忧。
3. 教育配套:城市TOP级全龄教育,滋养下一代未来
科创岛U6隶属于天府新区小学E区、初中C区划片范围,全龄段优质教育资源环绕,师资力量雄厚,为孩子成长保驾护航(具体入学政策、招生范围以教育部门官方通知为准):
• 小学:天府新区第一小学、天府新区十一学校(小学部)、成都市实验小学湖畔路校区(在建中)、成都市龙江路小学桐湾校区(在建中);
• 初中:元音中学、湖畔中学、天府新区十一学校(初中部)、七中育才中学(在建中,年底投入使用);
• 民办中学:天府七中、天府中学(顶尖民办资源,助力孩子菁英成长);
• 幼儿园:青羊幼儿园宝塘校区(在建中)、岛心幼儿园(在建中),实现0-18岁全龄教育覆盖。
4. 生态配套:甄稀湖岛生态,解锁自然宜居体验
5. 产业配套:科创产业加持,未来潜力无限
科创岛U6 咨询方式(重复提示)
科创岛U6 项目详情、核心卖点及全维度配套
科创岛U6 【营销中心】:028-62585717「销售热线」
免责声明
以上内容仅作为邀约邀请,涉及的图片为部分区域实拍图和美学畅想图,具体内容请以现场公示和合同约定为准;本文部分资料、部分图片来源于网络,如有侵权请联系我们删除。
声明:本文由入驻焦点开放平台的作者撰写,除焦点官方账号外,观点仅代表作者本人,不代表焦点立场。
