远大海湾云锦 新房价值高吗?可以下手买吗?
扫描到手机,新闻随时看
扫一扫,用手机看文章
更加方便分享给朋友
【营销中心】:028-62585717「销售热线」
【置业顾问】:13518186441「微信同步」
【置业顾问】:13668208612「微信同步」
虽然2025年成都楼市最直观的行业体感是“规模收缩”,但放在全国市场来看,成都仍然是一个生机勃勃的高能级市场。我们从房联备案口径全年成交数据的TOP10榜单中,看到了一个不一样的成都楼市。由于我们选取的维度为备案口径数据,或许会跟其他口径数据有些出入,但这一数据却更真实、具备参考性。2025年市场规模的缩减,是不争的事实。中指研究院数据显示,2025成都商品住宅成交面积为1181万㎡,同比下降18.3%。成交规模缩减背后的关键原因在于供应量的下滑。中指研究院数据显示,2025成都商品住宅供应面积为1037万㎡,同比下降20.5%。但规模收缩的表象下成都市场仍然暗藏澎湃活力,去年销售TOP10的榜单就是这样的集中体现。在这份榜单中,中国金茂、华发、成都嘉禾兴都是首次登榜,新上榜的企业纷纷将成都视为战略深耕的重要阵地,一直在榜单上的房企保利、华润置地、招商蛇口、中国铁建等,也更愿意在这座城市创造新的增长机会。
开发商:四川远大生物科技有限公司
占地面积:100785.63平方米
建筑面积:762349.19平方米
容积率:4.98
绿地率:30%
停车位:5919(1:2.16)
车位大小:2.6*5.5
总户数:2736户
楼栋总数:20栋住宅,3栋商业(自持)
物业公司:成都远大创新物业管理有限责任公司物业费:5.5元/平方米/月
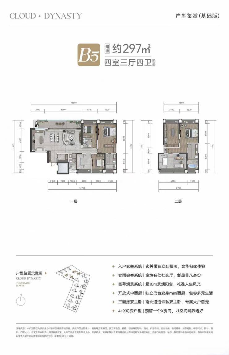
一期户型图
二期户型图
【营销中心】:028-62585717「销售热线」
【置业顾问】:13518186441「微信同步」
【置业顾问】:13668208612「微信同步」
温馨提示:专业一对一热情服务,为了节约您的等待时间,看房请提前致电预约
免责声明:
以上内容仅作为邀约邀请,涉及的图片为部分区域实拍图和美学畅想图,具体内容请以现场公示和合同约定为准;本文部分资料、部分图片来源于网络,如有侵权请联系我们删除
声明:本文由入驻焦点开放平台的作者撰写,除焦点官方账号外,观点仅代表作者本人,不代表焦点立场。
