新希望•天屹11月特价房源信息-销售中心电话-地址-电话-户型图分析
扫描到手机,新闻随时看
扫一扫,用手机看文章
更加方便分享给朋友
 
【营销中心】:028-62585717「销售热线」
【置业顾问】:13518186441「微信同步」
【置业顾问】:13668208612「微信同步」
房价同比跌幅出现收窄,9月份,70城新房价格同比下跌2.7%,跌幅比8月份收窄0.3个百分点。一线、二线、三线城市新房价格同比跌幅分别为0.7%、2.1%和3.4%,均在改善,新房价格同比上涨的城市有8个,比8月份增加3个。这说明,深度调整中部分城市房价泡沫加速出清,向着止跌回稳迈进。
【项目基础信息】
开发商:千亿国企经开发展&先锋民企新希望地产
总占地:44亩
容积率:2.0
物业形态:10栋纯洋房
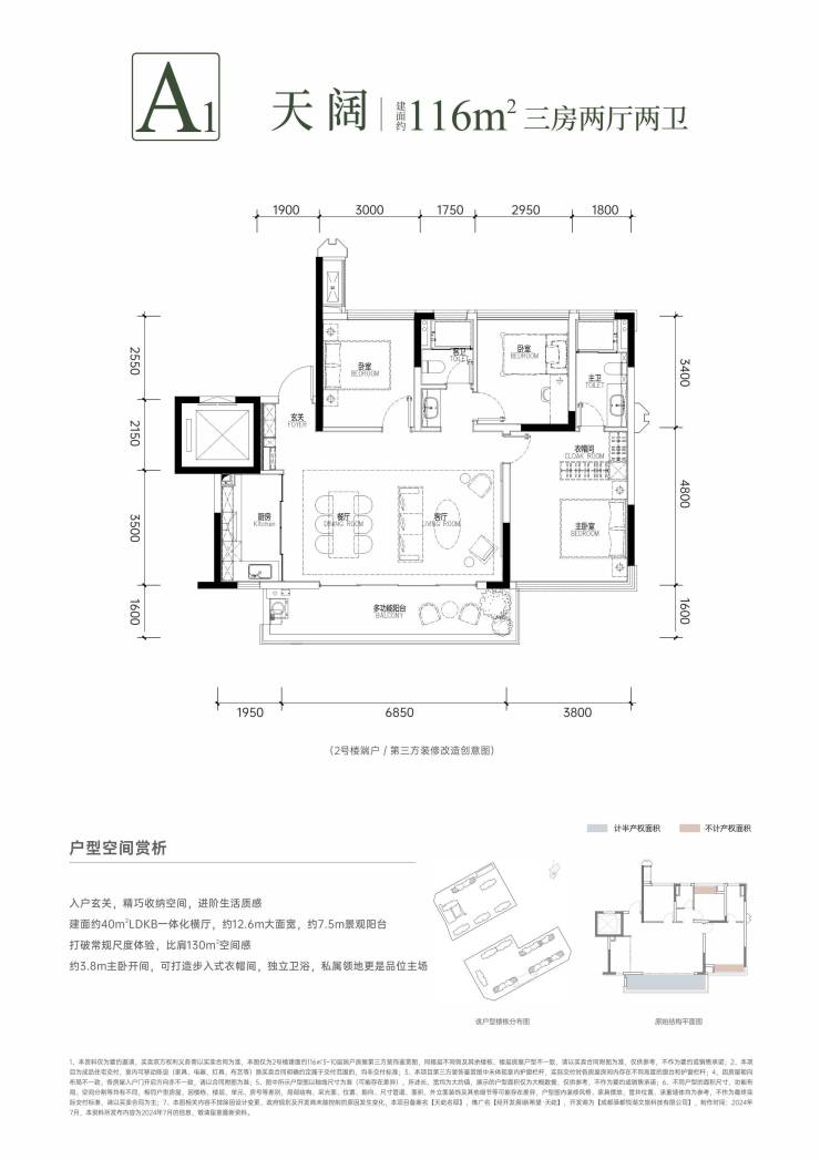
产品面积:建面约116㎡/143㎡
总层高:10-16F洋房
梯户比:1T2/2T2
绿化率:约35%(不含东干水渠)
交付标准:精装交付
项目地址:龙泉驿区东安街道跨湖路
 
 
 
【商业】龙湖东安天街,新城吾悦广场,万达广场,尽享湖芯醇熟生活圈
【交通】依靠蜀都大道/驿都大道/桃都大道等四横三纵道路网,通达全城;距地铁2号,远期规划有11、22、25号线
【教育】比邻向阳桥幼儿园/小学/中学、经开区实验中学(教科院领办)、成都市实验小学(和雅校区)、成都市实验小学(和雅校区、乐雅校区)等全龄优质教育资源,板块内更有四川师范大学成龙校区、四川财经职业学院等高等学府
【医疗】汇集有四川大学华西医院龙泉医院、成都中医药大学附属医院龙泉医院、龙泉驿妇幼保健院、四川省第三人民医院等三甲医院
【公园】近邻东安湖公园、驿马河公园、龙泉山城市森林公园,构建优质生活圈
【营销中心】:028-62585717「销售热线」
【置业顾问】:1351886441「微信同步」
【置业顾问】:13668208612「微信同步」
温馨提示:专业一对一热情服务,为了节约您的等待时间,看房请提前致电预约!!!
免责声明:
以上内容仅作为邀约邀请,涉及的图片为部分区域实拍图和美学畅想图,具体内容请以现场公示和合同约定为准;本文部分资料、部分图片来源于网络,如有侵权请联系我们删除。
声明:本文由入驻焦点开放平台的作者撰写,除焦点官方账号外,观点仅代表作者本人,不代表焦点立场。
 
 
 