成都 西派浣花 地铁旁 优质配套 成熟社区 超高性价比
扫描到手机,新闻随时看
扫一扫,用手机看文章
更加方便分享给朋友
【营销中心】:028-62585717「销售热线」
【置业顾问】:13518186441「微信同步」
【置业顾问】:13668208612「微信同步」
温馨提示:专业一对一热情服务,为了节约您的等待时间,看房请提前致电预约
今年4月30日,成都住建局发布关于《成都市商品房买卖合同备案管理办法(征求意见稿)》公开征求意见的通知,拟要求:资料齐全符合条件的合同备案、备案变更、备案注销等业务,负责核验工作的部门应当在1个工作日内办结。市住建局负责搭建全市统一的备案系统,运用互联网平台、移动服务端等多种服务方式,实现合同备案网上办理、就近办理、即时办结等,快捷打通房产交易链条。事实上,在此之前,成都新房的上市速度已经领先全国,从拿地到开盘周期再缩短至3至4个月。以嘉禾星·嘉禾宸府(温江)为例,该盘从拿地到过规,只花了6天时间。
建筑面积: 60987.62㎡,总户数:310户,总栋数:3栋,车位:总数358个 ,车位比:1:0.7,物业费:9元/㎡,全屋智能家居系统
建筑面积:120-165㎡一房 ,286-370㎡二房
梯户比:1#楼28层 低区3-13F三梯6户/中区14-23F三梯5户/高区24-28F三梯4户
2#楼28层 低区3-13F三梯5户/中区14-23F三梯5户/高区24-27F三梯3户
1号楼标准层平面图
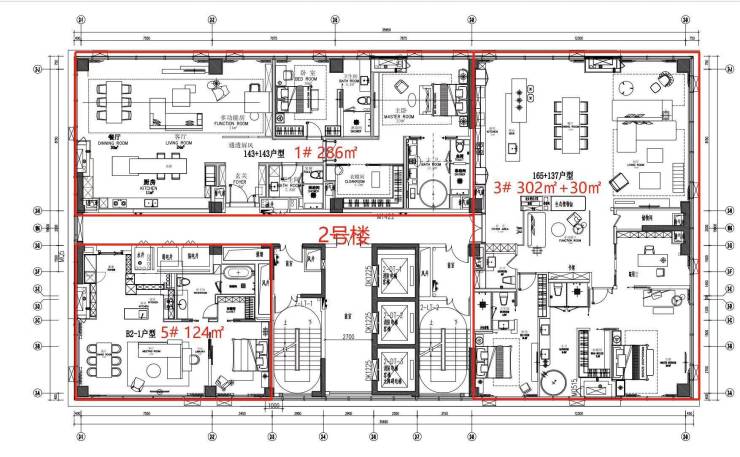
2号楼标准层平面图
【营销中心】:028-62585717「销售热线」
【置业顾问】:13518186441「微信同步」
【置业顾问】:13668208612「微信同步」
温馨提示:专业一对一热情服务,为了节约您的等待时间,看房请提前致电预约
免责声明:
以上内容仅作为邀约邀请,涉及的图片为部分区域实拍图和美学畅想图,具体内容请以现场公示和合同约定为准;本文部分资料、部分图片来源于网络,如有侵权请联系我们删除
声明:本文由入驻焦点开放平台的作者撰写,除焦点官方账号外,观点仅代表作者本人,不代表焦点立场。
