兴唐·新川雅境 营销销售中心 1月优惠及最新成交价格
扫描到手机,新闻随时看
扫一扫,用手机看文章
更加方便分享给朋友
【营销中心】:028-62585717「销售热线」
【置业顾问】:13518186441「微信同步」
【置业顾问】:13668208612「微信同步」
从区域看,成都新房市场冷热不均态势加剧。高热度的天府新区、高新区成交领跑,两区合计贡献超3万套成交量,占总成交套数约35%,总面积超350万平米,金额占比更高。近郊五城区成交平稳,而部分远郊区域去化压力依然较大。成交金额高度集中于城市高能级板块,均价差异显著,高新区均价突破2.5万元/平米,与外围区域价差拉大。市场购买力明显向核心优质区域集中,区域分化成为年度最显著特征。
兴唐·新川雅境总平图
此次取证的是东地块的1号楼1、2单元和称之为“楼王”的4号楼,共92套,总价约423-574万/套。据置业顾问表示:“项目开盘时有一定优惠政策。”
当被问及1栋1单元101号房源为何取到4.2万/㎡单价时,该置业顾问解释道,因为该房源将上百平米的花园计算在内,因此拉高了单价。
兴唐·新川雅境部分一房一价图,图据:成都购房通
而新川雅境132㎡、143㎡两种主力户型全为套四结构,且每户均带有约11㎡独立入户光厅,包括全赠送飘窗、半赠送阳台,实际得房率超90%,也在目前市场上的主流做法。
在成都楼市最“卷”143㎡赛道上,新川雅境做到7.25米开间的横厅和观景阳台,客餐厅形成超33㎡的LDKG一体化空间,而双套房、三卫的布局也能满足人口较多的家庭需求。
兴唐·新川雅境建面约143㎡户型图
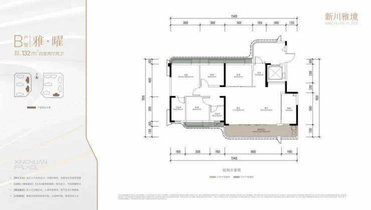
之于134㎡户型,结构与143㎡户型相似,但特点在于配置有约8.8米阳台,在同级产品中较罕见。
兴唐·新川雅境建面约132㎡户型图
精装方面,项目室内由国内知名设计师孟也操刀,约2990元/㎡装修标准中包括威能地暖、约克中央空调和霍尼韦尔新风系统三大件配齐,且在部分功能性做到提升,小项目有优势:
优势一:、处于新川新城区里,比较优先发展建设、优先成熟起来的地段,并且临新通大道主干道和6号线新通大道站,属于新川板块内,能快速辐射往返主城区、高薪就业区的地段。
优势二:家门口幼儿园、小学、初中已经就近配齐,小孩上下学接送较为方便。但是考虑到多校划片分配学位的规则,小孩能否上家门口的小学,则需要一点点的运气。
优势三:300多万挑新房的大4房,而且还是超大阳台,这个价位段在靠近大源、金融城南附近的板块,还算有一些性价比,具体看开发商有没有折扣,再做进一步的评判。
总之,300-500万在核心热点板块淘大4房,兴唐新川雅境,可以重点对比关注。
作为第一次在成都市场打造改善产品,或许是为打消购房者顾虑,包括实景示范区呈现、户型产品力、所有楼栋同时开工、室内装标升级等都是兴唐地产拿出的诚意
但不可否认的是,新川板块的产品同质化比较严重,143㎡基本是所有楼盘主力户型。在各路开发商都在卷产品力的时候,抛开价格因素,能否脱颖而出的关键是:品牌力+品质把控。
在产品接近的情况下,既要和比自己价格低的对手竞争,也要和品牌实力强的竞争,这或许是新川雅境的“两难”处境,对于一个没有品牌优势,单价又比较高的项目来说,开发商唯一的选择就是把产品呈现得更好,这需要时间来检验。
【营销中心】:028-62585717「销售热线」
【置业顾问】:13518186441「微信同步」
【置业顾问】:13668208612「微信同步」
温馨提示:专业一对一热情服务,为了节约您的等待时间,看房请提前致电预约
免责声明:
以上内容仅作为邀约邀请,涉及的图片为部分区域实拍图和美学畅想图,具体内容请以现场公示和合同约定为准;本文部分资料、部分图片来源于网络,如有侵权请联系我们删除。
声明:本文由入驻焦点开放平台的作者撰写,除焦点官方账号外,观点仅代表作者本人,不代表焦点立场。
