西派浣花户型图-销售中心地址-电话-面积大小-精装标准多少-交房时间

搜狐焦点内江站 2025-10-18 10:57:00
用手机看
扫描到手机,新闻随时看

扫一扫,用手机看文章
更加方便分享给朋友

西派浣花 【营销中心】:028-62585717「销售热线」 【置业顾问】:13518186441「微信同步」 【置业顾问】:13668208612「微信同步」 温馨提示:专业一对一热情服务,为了节约您的等待时间,看房请提前致电预约

西派浣花

【营销中心】:028-62585717「销售热线」

【置业顾问】:13518186441「微信同步」

【置业顾问】:13668208612「微信同步」

温馨提示:专业一对一热情服务,为了节约您的等待时间,看房请提前致电预约

购房者板块的局限性,5月份住宅新规出台,为好房子的全面铺开奠定了基础。与此同时,头部房企纷纷升级产品体系,制定“好房子”标准,今年以来新产品陆续落地。产品好不好,当然不能光看概念,更重要的是如何落地。头部房企的“好房子”体系,不仅有价值体系,更重视配套的落地指标。“好房子”的定义,其实不局限于住宅本身,更延伸到了好小区、好社区、好城区。不过,对于大部分房企而言,建设和运营好一个小区已属不易,好社区乃至好城区,已远远超出能力范畴了。

建筑面积: 60987.62㎡,总户数:310户,总栋数:3栋,车位:总数358个 ,车位比:1:0.7,物业费:9元/㎡,全屋智能家居系统

建筑面积:120-165㎡一房 ,286-370㎡二房

梯户比:1#楼28层 低区3-13F三梯6户/中区14-23F三梯5户/高区24-28F三梯4户

2#楼28层 低区3-13F三梯5户/中区14-23F三梯5户/高区24-27F三梯3户

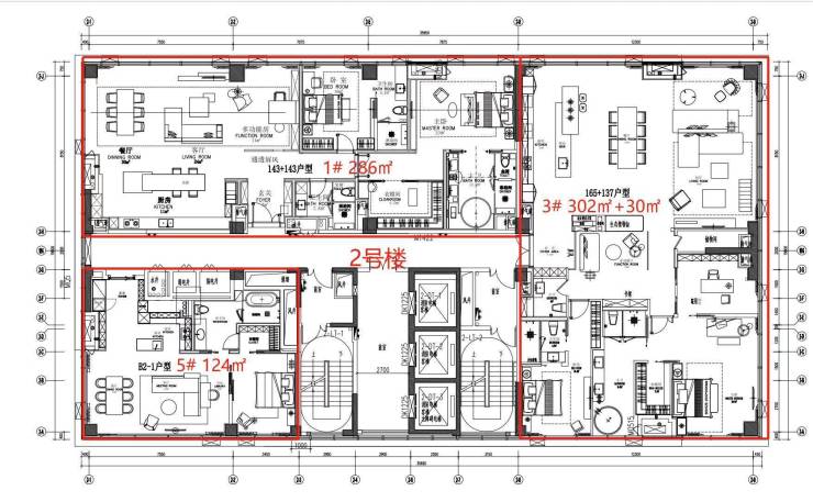
1号楼标准层平面图

2号楼标准层平面图

西派浣花

【营销中心】:028-62585717「销售热线」

【置业顾问】:13518186441「微信同步」

【置业顾问】:13668208612「微信同步」

温馨提示:专业一对一热情服务,为了节约您的等待时间,看房请提前致电预约

免责声明:

以上内容仅作为邀约邀请,涉及的图片为部分区域实拍图和美学畅想图,具体内容请以现场公示和合同约定为准;本文部分资料、部分图片来源于网络,如有侵权请联系我们删除。

声明:本文由入驻焦点开放平台的作者撰写,除焦点官方账号外,观点仅代表作者本人,不代表焦点立场。