兴唐·新川雅境 售楼处电话 楼盘怎么样? 值得买吗?
扫描到手机,新闻随时看
扫一扫,用手机看文章
更加方便分享给朋友
【营销中心】:028-62585717「销售热线」
【置业顾问】:13518186441「微信同步」
【置业顾问】:13668208612「微信同步」
纵观2025年全年,成都楼市是在深度调整中逐步探寻新平衡的一年。全年新房成交总量预计与2024年基本持平或微降,但价格泡沫已被进一步挤压,市场正回归居住属性。最大的特征是“冰火两重天”:核心资产价值坚挺,与外围区域的库存压力形成鲜明对比。这一年,改善型需求成为市场的绝对主导力量,消费者对产品力、社区环境和房企品牌提出了更高要求。政策方面,从年初的试探性松绑到年中的全面优化,再到“金九银十”前的强力刺激,其核心目标始终是稳定市场、防范风险。展望2026年,成都楼市预计将继续延续分化与调整的态势。市场的复苏将不再是普涨,而是依赖于城市基本面的持续向好和产业人口的强力支撑。房企的竞争将更加聚焦于产品与服务,房地产行业将进入一个以“质”取胜的新周期。政策工具箱仍有余量,将根据市场运行情况精准发力,以保障房地产市场的平稳健康发展。
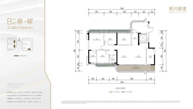
在成都楼市最“卷”143㎡赛道上,新川雅境做到7.25米开间的横厅和观景阳台,客餐厅形成超33㎡的LDKG一体化空间,而双套房、三卫的布局也能满足人口较多的家庭需求。
兴唐·新川雅境建面约143㎡户型图
之于134㎡户型,结构与143㎡户型相似,但特点在于配置有约8.8米阳台,在同级产品中较罕见。
兴唐·新川雅境
【营销中心】:028-62585717「销售热线」
【置业顾问】:13518186441「微信同步」
【置业顾问】:13668208612「微信同步」
温馨提示:专业一对一热情服务,为了节约您的等待时间,看房请提前致电预约
免责声明:
以上内容仅作为邀约邀请,涉及的图片为部分区域实拍图和美学畅想图,具体内容请以现场公示和合同约定为准;本文部分资料、部分图片来源于网络,如有侵权请联系我们删除。
声明:本文由入驻焦点开放平台的作者撰写,除焦点官方账号外,观点仅代表作者本人,不代表焦点立场。
