中铁建西派御府 营销中心 在售新楼盘 精选笔记 最新在售消息 价格
扫描到手机,新闻随时看
扫一扫,用手机看文章
更加方便分享给朋友
【营销中心】:028-62585717「销售热线」
【置业顾问】:13518186441「微信同步」
【置业顾问】:13668208612「微信同步」
当前成都新房市场的热度主要由改善型需求支撑。市场呈现出“刚需冷,改善热”的特点。购房资格和资金更多地流向了面积更大、品质更高、居住体验更好的改善型项目。这部分客群购买力强,对价格敏感度相对较低,但对产品力要求极高。因此,购房者的购房心理也发生了深刻变化。他们不再是简单的“解决住房有无”问题,而是追求“住得更好”。这意味着他们极度关注户型设计、社区园林、物业服务和产品的创新性。“一步到位”的置业思想在改善客群中愈发普遍。展望下半年房价,在改善需求成为市场主导的情况下,真正具备产品力的高端改善项目价格将表现出较强的抗跌性,甚至领涨市场。它们凭借其稀缺性能够穿越周期,不受短期市场波动的影响。反之,同质化严重、缺乏亮点的刚需产品将面临更大的竞争压力。整体而言,市场将更加强调“价值回归”,房价与品质的关联度将空前紧密。
【报价】首开活动等,展厅了解介绍。
配套:
交通:金牛区三环内茶花新城,开车约20分钟到达天府广场,约500米27号线花照壁北站,约800米7号线茶店子站,多线换乘(2号,6号)
商业:步行到达龙湖西宸天街商圈。周边:金牛凯德广场商圈、华侨城商圈(山姆沃尔玛),天府艺术街,居然之家,欢乐谷
教育:成都最高的指标到校区域“金5”区,诸多名校茶店子小学 七中81附属学校,详情可以展厅了解。
生态:毗邻新金牛公园,1km即达天府艺术公园。区域公园众多:金牛体育中心、成都市新桥公园、合计约3150亩的城市公园集群。
文化:八大美学生活馆:天府美术馆 当代艺术馆 金牛图书馆 金牛文化馆等。
医疗:约300米省人民医院金牛分院,区域配套诸多三甲,私立医院(安琪儿)。
1,中铁建15年西派,金牛区第一座西派。 该区域新规产品
2,国际一线西派御用大师颜政 塔瓦猜作品,打造法国南部蔚蓝海岸风情园林。
3,会所配备高端项目必备之一:室内恒温泳池配高温池。金牛区第一座双层叠水水景园林。
4,项目首层大门&负一楼落客区,尊崇仪式双车马院入户。
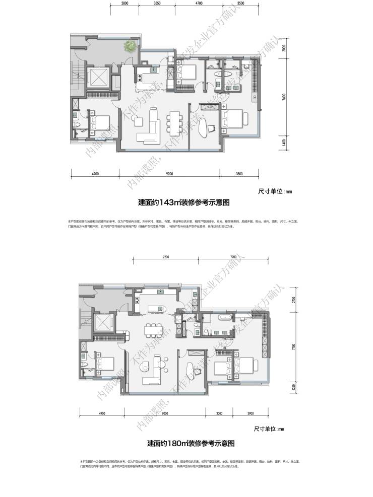
6,主力180户型,入门143户型,高改255户型,大户型占比近70%。面积段改善,圈层纯粹,产品升级。
6,会所近10米层高西派书吧,超大尺度会所空间革新高端产品格局。
7,建面约143户型全明设计和收纳体系,所有房间均能采光,5面宽朝南。
8,建面约180户型小家化卧室系统+客餐厅全南向设计,全明卫设计。
9,超13入户光厅,仪式感和居家空间,产品升级。
10,255户型高改珍藏产品即将面世,更加期待。
总结下项目的几个核心买点:
1、目前主城区在售,位置最好的项目:西2.5环,距离二环高架不到2公里,离市中心最近的项目
2、目前主城区在售,配套最齐全的项目:主城区城市界面最好的板块,老成都中的新城市,公园、地铁、商业、学校、医院均在1公里范围内步行可达
3、目前主城区在售,改善品质最纯粹的项目:西派豪宅的金字招牌,叠加全新一代的产品规划,同时大户型占比70%,豪宅品牌豪宅户型豪宅圈层。
【营销中心】:028-62585717「销售热线」
【置业顾问】:13518186441「微信同步」
【置业顾问】:13668208612「微信同步」
温馨提示:专业一对一热情服务,为了节约您的等待时间,看房请提前致电预约!!!
免责声明:
以上内容仅作为邀约邀请,涉及的图片为部分区域实拍图和美学畅想图,具体内容请以现场公示和合同约定为准;本文部分资料、部分图片来源于网络,如有侵权请联系我们删除
声明:本文由入驻焦点开放平台的作者撰写,除焦点官方账号外,观点仅代表作者本人,不代表焦点立场。
