西派浣花-售楼处 销售中心预约专线 户型配套介绍 最新房价 购房政策
扫描到手机,新闻随时看
扫一扫,用手机看文章
更加方便分享给朋友
【营销中心】:028-62585717「销售热线」
【置业顾问】:13518186441「微信同步」
【置业顾问】:13668208612「微信同步」
温馨提示:专业一对一热情服务,为了节约您的等待时间,看房请提前致电预约
5月20日,四川省统计局《2025年1—4月四川省国民经济主要指标数据》显示,房地产开发投资同比下降6.8%。商品房施工面积同比下降12.6%,新建商品房销售面积下降7.4%。在成都市一季度经济运行的开局成绩里,其他各行各业普遍以“增长”为美,只有房地产开发投资大大方方地下降了3.4%。而这种变化,可能与土地供应的放缓、土地位置的外移有关。一是因为随着城市发展进入成熟期,中心城区可供开发的土地越来越少,二是适应高质量发展,地方政府对开发者的要求也越来越高。因此,土地市场一旦出现“熟地”或前景看好的潜力地块,就会引来众多房企“围猎”。今年3月,成都楼市连续两次刷新历史楼面地价——从招商31700/㎡勇夺大源地块,到建发领军“楼面价4万”时代,成都楼市不仅不凉,反而很热。
建筑面积: 60987.62㎡,总户数:310户,总栋数:3栋,车位:总数358个 ,车位比:1:0.7,物业费:9元/㎡,全屋智能家居系统
建筑面积:120-165㎡一房 ,286-370㎡二房
梯户比:1#楼28层 低区3-13F三梯6户/中区14-23F三梯5户/高区24-28F三梯4户
2#楼28层 低区3-13F三梯5户/中区14-23F三梯5户/高区24-27F三梯3户
1号楼标准层平面图
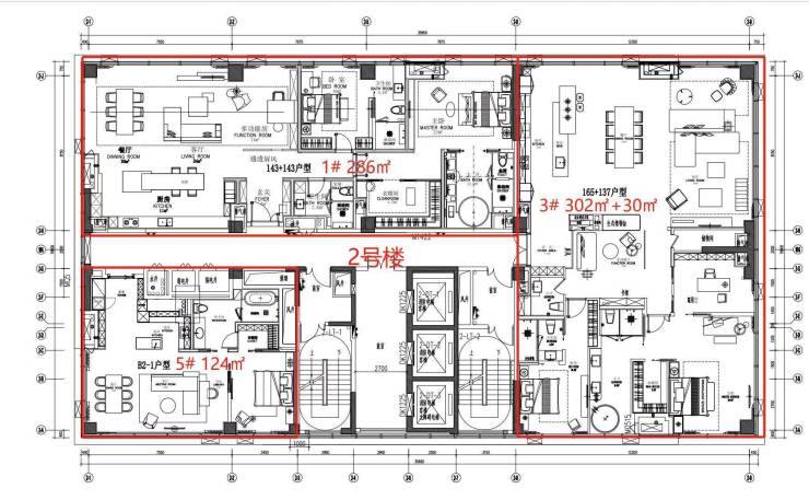
2号楼标准层平面图
【营销中心】:028-62585717「销售热线」
【置业顾问】:13518186441「微信同步」
【置业顾问】:13668208612「微信同步」
温馨提示:专业一对一热情服务,为了节约您的等待时间,看房请提前致电预约
免责声明:
以上内容仅作为邀约邀请,涉及的图片为部分区域实拍图和美学畅想图,具体内容请以现场公示和合同约定为准;本文部分资料、部分图片来源于网络,如有侵权请联系我们删除。
声明:本文由入驻焦点开放平台的作者撰写,除焦点官方账号外,观点仅代表作者本人,不代表焦点立场。
