国宾璟园户型图-销售中心地址-电话-面积大小-精装标准多少-交房时间

搜狐焦点内江站 2025-10-17 10:53:00
用手机看
扫描到手机,新闻随时看

扫一扫,用手机看文章
更加方便分享给朋友

国宾璟园 【营销中心】:028-62585717「销售热线」 【置业顾问】:13518186441「微信同步」 【置业顾问】:13668208612「微信同步」 温馨提示:专业一对一热情服务,为了节约您的等待时间,看房请提前致电预约!!!

国宾璟园

【营销中心】:028-62585717「销售热线」

【置业顾问】:13518186441「微信同步」

【置业顾问】:13668208612「微信同步」

温馨提示:专业一对一热情服务,为了节约您的等待时间,看房请提前致电预约!!!

购房者板块的局限性,5月份住宅新规出台,为好房子的全面铺开奠定了基础。与此同时,头部房企纷纷升级产品体系,制定“好房子”标准,今年以来新产品陆续落地。产品好不好,当然不能光看概念,更重要的是如何落地。头部房企的“好房子”体系,不仅有价值体系,更重视配套的落地指标。“好房子”的定义,其实不局限于住宅本身,更延伸到了好小区、好社区、好城区。不过,对于大部分房企而言,建设和运营好一个小区已属不易,好社区乃至好城区,已远远超出能力范畴了。

基础参数

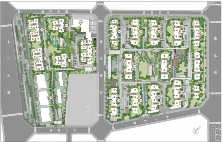
占 地:约109亩

面 积:131-169平(璟园)

88-109平(璟怡园)

均 价:26000/平

总 价:220-430万

物业费:3.83元/平/月(中海物业)

梯户比:2T2户(璟园70亩817户)

2T4户(璟怡园504户)

总层高:13-17F

车位比:1:1.66

容积率:2.5

绿化率:44.37%(璟园)

36.09%(璟怡园)

交房标准:精装带三大件(大部分楼栋)

交房时间:2024年10月

城投置地·国宾璟园,总占地约109亩,容积率2.5。2023年至今,成都主城五区超100亩的地块仅有2宗,可想而知项目这种超百亩体量的稀贵。

交通配套:

两横三纵立体交通网络体系

两横:金牛大道、西华大道。

三纵:金粮路、金芙蓉大道、三环路。

坐享双地铁三TOD+10余条公交路线

主要的2条地铁线路:2号线,6号线,9号线2期和12号线规划中

3TOD:兴盛TOD、梓潼宫TOD、金周路TOD

🛍商业配套:社区综合体(门口无缝街接);天府公园内8万方商业;爱情海购物公园;沃尔玛山姆会员店及大悦城

15万方龙湖西宸天街等商业

医疗配套:

项目附近有363医院、成都市西区医院、四川省人民医院金牛医院、还有规划建设的三级甲等公立医院-第五人民医院金牛院区。

教育资源

幼儿教育:

成都市第十六幼成蹊分园、美乐思幼儿园

小学教育:

石笋街小学(即将竣工)、成都市兴盛小学、金泉小学、全兴小学

中学教育:七中万达学校;成都外国语学校;犀浦外国语学校

生态配套:所在的区域位于成都市重点打造三大“天府级”之一的天府艺术公园片区之内,而天府艺术公园由我们成都城投打造建设而成。

天府艺术公园片区总占地约 6270 亩,位于东至三环路,南至金牛大道,西至西环线,北至西华大道的国合区域内。

【营销中心】:028-62585717「销售热线」

【置业顾问】:13518186441「微信同步」

【置业顾问】:13668208612「微信同步」

温馨提示:专业一对一热情服务,为了节约您的等待时间,看房请提前致电预约!!!

免责声明:

以上内容仅作为邀约邀请,涉及的图片为部分区域实拍图和美学畅想图,具体内容请以现场公示和合同约定为准;本文部分资料、部分图片来源于网络,如有侵权请联系我们删除。

声明:本文由入驻焦点开放平台的作者撰写,除焦点官方账号外,观点仅代表作者本人,不代表焦点立场。