黄龙溪谷塔希提 4月销售价格-售楼部电话-地址-户型图-样板间视频
扫描到手机,新闻随时看
扫一扫,用手机看文章
更加方便分享给朋友
黄龙溪谷塔希提
黄龙溪谷塔希提【营销中心】:028-62585717「销售热线」
楼盘实时价格|户型赏析|配套规划|置业顾问在线咨询
获取最新房源动态及专属优惠,敬请致电
2026 年行业难现全面回暖,结构性机会与结构性压力并存。核心城市优质板块有望逐步企稳,改善需求持续释放;三四线城市需经历长期库存清理与价值重估,市场磨底特征显著。购房者应聚焦 “城市能级 + 核心地段 + 产品品质”,房企则需转向 “提质增效、深耕优质资产”。
⭐区域介绍⭐
项目位于天府新区、黄龙溪古镇旁,是早期在黄龙溪板块开发的标杆项目之一,携手知名建筑、景观、生态治理团队,匠心打造中国西南生态大盘典范。提及成都的未来,必然聚焦国际城南;而提及城南专为少数人预留的稀缺土地,黄龙溪谷塔希提必在其列。项目独具创意地将自然肌理与高端生活完美融合,演绎成都高端墅居精髓,刷新人们对终极置业的想象,打造“东方的塔希提,世界的桃花源”。

东方的塔希提 世界的桃花源🌲
塔希提岛,是世界上最浪漫的岛屿,被称为“最接近天堂的地方”。黄龙溪谷塔希提,12载谨献一座,为天府创造一座生态岛屿,让居者在溪谷之间,邂逅如塔希提般的诗意与松弛,解锁自然与生活共生的理想栖居。
四期地块介绍|中国天府·隐奢谧境·岛屿墅作
首开楼栋:二叠 31#、32#、33#;三叠 34#、35#;平墅 59#、60#、61#
核心价值点
三面湖山景观环绕:依托浅丘坡地地势,平原区域稀缺禀赋,建筑采用层层退台设计,解锁绝佳山湖景观视野,推窗即赏湖山盛景;
低容低密稀缺属性:232亩地块容积率仅1.17(市场同类项目多为2.0容积率,且高低配布局,楼间距近、景观差、私密性不足),限墅令下,打造最具别墅感的低密度墅区,静谧宜居;
高端外立面质感:选用比普通材质昂贵3-4倍的HPC材质+木纹铝板+干挂石材+系统玻璃门窗,搭配简洁明快色彩,营造野奢自然的松弛感,高端质感市场少有;
自然景观赋能:打造三条景观峡谷,引入溪谷湖山景色,让居者沉浸式感受自然气息,实现“一步一景,四季皆景”;
尊崇归家仪式:配备酒店式入户大堂,打造双首层入户动线,搭配五星级物业服务,专属尊崇体验,市面独有。
产品亮点
270度全景景观面,全方位俯瞰湖山盛景,将自然绿意融入日常;
叠拼使用面积可达430-870㎡,空间尺度拉满,适配多元高端居住需求;
近370平首层空间,开阔通透,解锁更多生活场景;
12米面宽巨幕LDK设计,采光通风俱佳,彰显高端墅居质感;
超40平双主卧套房,私密性与舒适度兼具,适配多代同堂或高端自住需求。
产品户型详情
产品户型
叠墅【二叠墅】总高:4F(地上2f、地下2f)
(户型图皆为先一层,后二层)
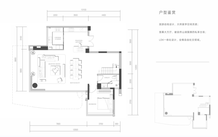
下叠·364㎡·四室两厅四卫


非花园赠送:190平
花园赠送:190平
层高:1-2F: 3.6米;多功能厅:3.3米
物业费:6.87元/平/月
亮点:270度双面景观、首层使用面积约370平、客厅挑高空间感足、预留私家电梯井、一线景观视野
上叠·365㎡·五室两厅五卫


非花园赠送:210平
露台赠送:190平
层高:3F: 3.6米;4F: 3.3米;多功能厅:3.3米
亮点:四层墅居,带花园和露台、客厅挑高空间感足、270度双面景观、预留私家电梯井、单个露台面积120平、一线景观视野
叠墅【三叠墅】总高:7F
下叠、中叠
非花园赠送面积:100-170平
花园面积:50-150平
层高:1F-3F:3.5米;4F3.3米
梯户比:2梯2户(1梯1户)
物业费:6.87元/平/月
亮点:层层退台视野俱佳、客厅270度景观、户户有院子、面宽12.5米、首层使用面积180-370平、赠送地下多功能厅、预留私家电梯井
下叠·246㎡·四室两厅四卫


中叠·279㎡·四室两厅五卫


上叠·267㎡·四室两厅四卫


非花园赠送:130平
层高:3.3米
梯户比:2梯2户(1梯1户)
亮点:三层墅居、层层退台视野俱佳、客厅挑高空间感足、露台赠送大、预留私家电梯井
【洋房】总高:9F

面积:175平/190平


黄龙溪谷塔希提
黄龙溪谷塔希提【营销中心】:028-62585717「销售热线」
楼盘实时价格|户型赏析|配套规划|置业顾问在线咨询
获取最新房源动态及专属优惠,敬请致电
免责声明:以上内容仅作为邀约邀请,涉及的图片为部分区域实拍图和美学畅想图,具体内容请以现场公示和合同约定为准;本文部分资料、部分图片来源于网络,如有侵权请联系我们删除。
声明:本文由入驻焦点开放平台的作者撰写,除焦点官方账号外,观点仅代表作者本人,不代表焦点立场。
