广都鑫中心 10月国庆特惠价格-售楼部电话-地址-户型图-面积

搜狐焦点内江站 2025-10-02 17:25:00
用手机看
扫描到手机,新闻随时看

扫一扫,用手机看文章
更加方便分享给朋友

广都鑫中心 【营销中心】:028-62585717「销售热线」 【置业顾问】:13518186441「微信同步」 【置业顾问】:13668208612「微信同步」

广都鑫中心

【营销中心】:028-62585717「销售热线」

【置业顾问】:13518186441「微信同步」

【置业顾问】:13668208612「微信同步」

2025年以来,现在无疑是房地产最好的时代,是最佳的购房时机,买房子的一个很重要的理由就是房子会升值。其实这里面是混淆了房产和地产的概念,严格地来说,升值的是地产,房产只有贬值的命。你以为的房子升值了,并不是房子本身的升值,而是房子所处地段的升值

【项目参数】

占地面积:28.35亩

建筑面积:241470.5m

目前主售:双发天禧中心2号楼1、2单元

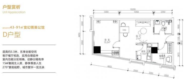
主力户型:57㎡

面积段:43㎡-91㎡(主力面积55-60㎡)

层高:3.25-3.3米

总高:25层(-1-4F商业、-2到-4车位、5-25F公寓)

首开楼层:13F、22F

三通:水电气三通(商业)

公摊:30%左右

梯户比:一单元6T33户 、二单位6T37户

物管费:4.9元

交付时间:合同2025年12月31日前

提前到2025年9月交房

交付标准:清水

均价:6600-7500

总价:30-68万

付款方式:一次性(整层可谈分期)

整层面积:约4100㎡ 报价3000万(15-20F)

一单元:约1930㎡ 报价1400万

二单元:约2170㎡ 报价1600万

核心价值:

1.地段城市中轴天府大道高新区与天府新区交界处,天府新区门户位置,不可复制。

2.稀缺性:天 府大道中轴线上稀缺小面积,低总价,水电气三通物业,低门槛,低风险,高回报。

3.交通:双 地铁物业(地铁1号线、18号线)。

4.市政配套:天府新区政务中心旁,红利 享受,极地海洋世界旅游打卡点。

5.建筑风格:新现代建筑风格更能体现项目在天府大道上的标志性。

6.人流保障 金融城,新川科技园,天府新区中央商务区金三角区域,大大吸附区域人流,为出租带来有利保障。

7.居住:超2万平米绿化,水景观,城市 广场,商业产权住宅配套,星级物业提高居住舒适度,负1层自带生活超市。

8.入驻商家:高端酒店希尔顿惠顿商旅酒店已正式签约。

【交通配套】:

双地铁上盖:1号线华阳站18号线海昌路站

503 504 T205等二十条公交线路

五纵四横立体网络

五纵:剑南大道、益州大道、天府大道、梓州大道(科华路南延线)、成自泸高速;

四横:三环路、绕城高速、华阳大道、麓山大道。

【商业配套】:三利广场,是集商务办公、综合购物、高端酒店、商业体验为一体的综合性购物广场,

项目对面还有金地三期约70万方的大型商业综合体,周边还有沃尔玛山姆会员店、红星美凯龙、富森美等综合性商业,实

【医疗配套】:拥有天府新区人民医院、四川石油总医院、玛利亚天府妇产儿童医院、天府新区安琪儿国际妇女儿童医院、四川省中西医结合医院、四川宝石花医院等。

【生态娱乐】:项目旁边是海昌极地海洋公园、南湖梦幻岛,南湖湿地公园等。

【优质教育】:金苹果幼儿园 天府四小 天府五小 天府实验小学 天府实验中学 天府实验外国语学校等。

广都鑫中心

【营销中心】:028-62585717「销售热线」

【置业顾问】:13518186441「微信同步」

【置业顾问】:13668208612「微信同步」

免责声明:

以上内容仅作为邀约邀请,涉及的图片为部分区域实拍图和美学畅想图,具体内容请以现场公示和合同约定为准;本文部分资料、部分图片来源于网络,如有侵权请联系我们删除。

声明:本文由入驻焦点开放平台的作者撰写,除焦点官方账号外,观点仅代表作者本人,不代表焦点立场。