远大海湾云锦 项目优劣势分析 是否值得上车?最新价格多少?周边配套 学校 交通怎么样?
扫描到手机,新闻随时看
扫一扫,用手机看文章
更加方便分享给朋友
【营销中心】:028-62585717「销售热线」
【置业顾问】:13518186441「微信同步」
【置业顾问】:13668208612「微信同步」
成都楼市,前三季度的成交量数据,出来了!据房小团数据统计,前三季度,成都共成交超25万套房源,其中新房7.3万套,二手房超18万套,二手房成交量已达到24年全年的78.3%,成交总量依然在全国首屈一指。值得注意的是,25年9月成都二手房累计成交19581套,成交量同比24年9月的15208套猛涨约28.8%。不是说市场不行吗,为何成都人还是在恐慌性买房,成交量不跌反涨?作为每年房地产最重要的节点,今年“金九”成都楼市表现依然备受关注。机构统计数据显示,今年9月成都全市商品房成交6721套,较去年同期增加1406套,同比增长20.5%。克而瑞监测也显示,9月成都新房盘均来访量提升至约260组,环比增加41组;需求的增长也有效转化为成交,盘均成交量达到11套,较上月增加2套。“随着政策利好持续释放,叠加国庆期间房企积极促销,能否有效提振购房者信心、推动市场情绪回暖,将成为接下来市场关注的重点。”
开发商:四川远大生物科技有限公司
占地面积:100785.63平方米
建筑面积:762349.19平方米
容积率:4.98
绿地率:30%
停车位:5919(1:2.16)
车位大小:2.6*5.5
总户数:2736户
楼栋总数:20栋住宅,3栋商业(自持)
物业公司:成都远大创新物业管理有限责任公司物业费:5.5元/平方米/月
一期户型图
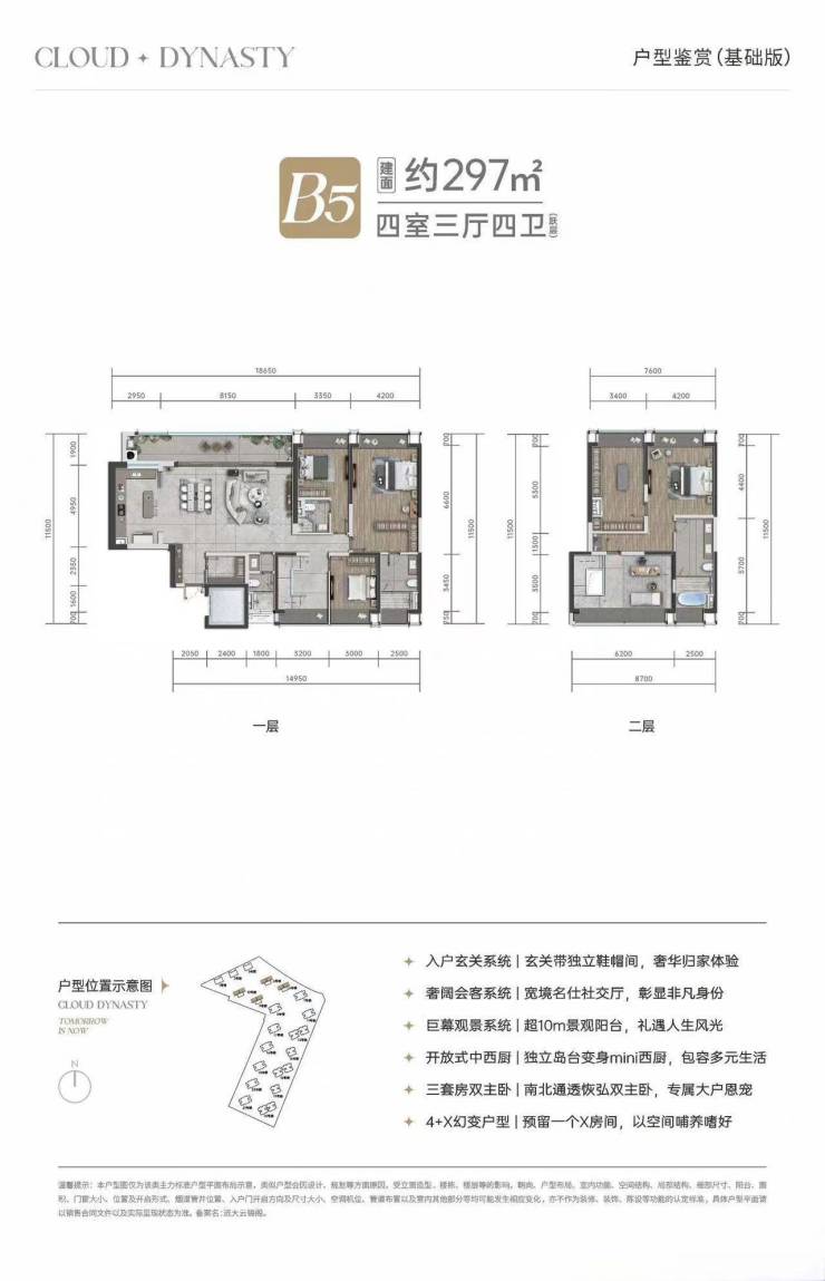
二期户型图
【营销中心】:028-62585717「销售热线」
【置业顾问】:13518186441「微信同步」
【置业顾问】:13668208612「微信同步」
温馨提示:专业一对一热情服务,为了节约您的等待时间,看房请提前致电预约
免责声明:
以上内容仅作为邀约邀请,涉及的图片为部分区域实拍图和美学畅想图,具体内容请以现场公示和合同约定为准;本文部分资料、部分图片来源于网络,如有侵权请联系我们删除
声明:本文由入驻焦点开放平台的作者撰写,除焦点官方账号外,观点仅代表作者本人,不代表焦点立场。
