人居江岸林语得房率多少-大平层面积多少-户型图-销售电话-价格多少
扫描到手机,新闻随时看
扫一扫,用手机看文章
更加方便分享给朋友
【营销中心】:028-62585717「销售热线」
【置业顾问】:13518186441「微信同步」
【置业顾问】:13668208612「微信同步」
温馨提示:专业一对一热情服务,为了节约您的等待时间,看房请提前致电预约!
有些板块就是明显的要亏钱,但是我们面临的市场又是一个地缘性需求极强的状态,购房者的心态是不求保值只求自保,就是保证买了之后,入住之前,房价不要跌,不要被迭代、不要被背刺;从这个角度来讲所谓有些品质新房的溢价,似乎变得越来越不成立,还不如踏踏实实买个性价比,而这个性价比如何判断呢?这个板块的差异性非常大
基础信息
[江岸林语]位于相互成青羊西,紧邻马场坝 r0D和五朵私花。
占地面积:400亩 容积率:2.5 绿化率:30% 交房时间:82亩:2024年底 99亩:2025年10月
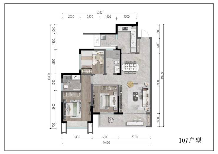
物业公司:82亩蜀川物业/99亩万科物业 物业费:2.60元 面积:107/128/143/175㎡
梯户比:107㎡,128㎡:2T4户 143㎡:2T2户 175㎡:1T2户 公摊面积:16%-20% 总层高:10层/14层/16层/17层/18层 车位比:1:1.38
区域配套介绍:
交通配套
四横:成名高速-日月大道、花都大道、光华大道、光华8线
四纵:骑士大道、凤凰大街、土龙路、绕城高速
双轨(双TOD):地铁4号线(马厂坝TOD)、地铁28号线(规划-红桥TOD)
教育配套
4所幼儿园:金苹果幼稚园、伊顿双语幼儿园、红桥幼儿园、金太阳幼儿园
3所小学:江安路小学、花都小学、温江光华实验小学
6所中学:光华实验中学、温江中学实验学校、温江中学、成都东辰外国语学校、嘉祥外国语学校、成都七中实验学校
(图片来源于网络)
商业配套
0公里商圈:前海购物中心
3公里TOD、光华商圈:珠江广场、新光天地、天来国际广场、丰隆商业综合体、花沐里广场
10公里青羊、双楠商圈:青羊万达、鹏瑞利广场、西单商场、优品道广场、龙湖金楠天街、双楠伊藤
医疗配套
前海医疗综合体(在建)、华西温江分院、省八一康复中心、温江区人民医院、第五人民医院、温江中医医院
自然生态环境
江安河、八斗渠、江安河公园、碧落湖公园、花悦湾公园、国际非遗博览园
【营销中心】:028-62585717「销售热线」
【置业顾问】:13518186441「微信同步」
【置业顾问】:13668208612「微信同步」
温馨提示:专业一对一热情服务,为了节约您的等待时间,看房请提前致电预约
免责声明:
以上内容仅作为邀约邀请,涉及的图片为部分区域实拍图和美学畅想图,具体内容请以现场公示和合同约定为准;本文部分资料、部分图片来源于网络,如有侵权请联系我们删除
声明:本文由入驻焦点开放平台的作者撰写,除焦点官方账号外,观点仅代表作者本人,不代表焦点立场。
