西派浣花 新楼盘 房子怎么样? 品质怎么样?装修 清水标准
扫描到手机,新闻随时看
扫一扫,用手机看文章
更加方便分享给朋友
【营销中心】:028-62585717「销售热线」
【置业顾问】:13518186441「微信同步」
【置业顾问】:13668208612「微信同步」
温馨提示:专业一对一热情服务,为了节约您的等待时间,看房请提前致电预约
12月成都新房市场预计呈现“价稳量缓”的下行特征,价格无大幅波动但整体呈微降趋势,而购房者的选择空间与权益保障则持续升级。新政推动房企加快项目上市,通过压缩审批时限等举措,让更多新房源在12月集中入市,购房者能接触到更丰富的户型和楼盘资源。同时预售资金监管优化也惠及购房者,A级房企可凭保函调整监管额度,核心施工节点的预售资金支取比例提高,这能推动项目施工进度,减少烂尾风险。此外多数区域房价波动平缓,如双流、都江堰等区域12月新房价格难有上涨动力,购房者无需急于下单,可从容对比不同楼盘,结合自身需求挑选高性价比房源,购房决策周期更充裕。
建筑面积: 60987.62㎡,总户数:310户,总栋数:3栋,车位:总数358个 ,车位比:1:0.7,物业费:9元/㎡,全屋智能家居系统
建筑面积:120-165㎡一房 ,286-370㎡二房
梯户比:1#楼28层 低区3-13F三梯6户/中区14-23F三梯5户/高区24-28F三梯4户
2#楼28层 低区3-13F三梯5户/中区14-23F三梯5户/高区24-27F三梯3户
1号楼标准层平面图
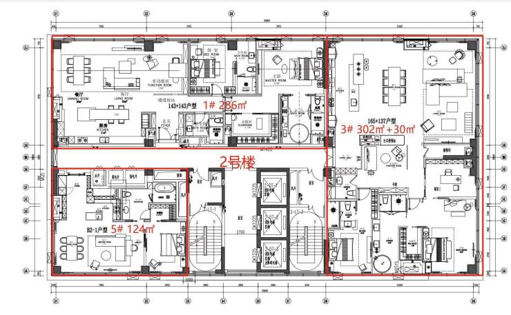
2号楼标准层平面图
【营销中心】:028-62585717「销售热线」
【置业顾问】:13518186441「微信同步」
【置业顾问】:13668208612「微信同步」
温馨提示:专业一对一热情服务,为了节约您的等待时间,看房请提前致电预约
免责声明:
以上内容仅作为邀约邀请,涉及的图片为部分区域实拍图和美学畅想图,具体内容请以现场公示和合同约定为准;本文部分资料、部分图片来源于网络,如有侵权请联系我们删除。
声明:本文由入驻焦点开放平台的作者撰写,除焦点官方账号外,观点仅代表作者本人,不代表焦点立场。
