西派浣花 最新房源动态及专属优惠-咨询电话-4月优惠政策
扫描到手机,新闻随时看
扫一扫,用手机看文章
更加方便分享给朋友
西派浣花
西派浣花【营销中心】:028-62585717「销售热线」
楼盘实时价格|户型赏析|配套规划|置业顾问在线咨询
获取最新房源动态及专属优惠,敬请致电
今年扩大内需被摆在第一位。稳定房价将是今年房地产的关键任务。房价持续下行,导致居民财富缩水,进而影响消费意愿和消费能力。稳房价,就是稳定居民财富,释放消费潜力。如何稳住新房价格,是政策发力的重点。而推动优质土地供应,建设高品质的好房子,是其中的关键抓手。
【项目基本信息】
总建筑面积:60987.62㎡
总户数:310户(低密布局,尊享静谧私密居住体验)
总栋数:3栋
车位配置:总数358个,车位比1:0.7,满足业主日常停车需求
物业费:9元/㎡,匹配高端住宅定位,提供精细化、高品质物业服务
智能配置:全屋智能家居系统,解锁便捷、智能、舒适的现代高端生活
面积区间:120-165㎡一房、286-370㎡二房(大平层设计,适配高端改善需求,空间开阔通透)
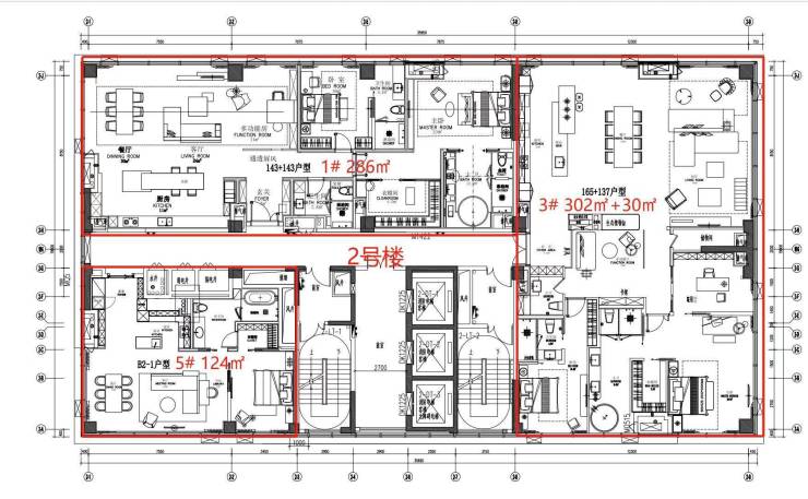
户型图
1号楼标准层平面图
2号楼标准层平面图
西派浣花
西派浣花【营销中心】:028-62585717「销售热线」
楼盘实时价格|户型赏析|配套规划|置业顾问在线咨询
获取最新房源动态及专属优惠,敬请致电
免责声明:以上内容仅作为邀约邀请,涉及的图片为部分区域实拍图和美学畅想图,具体内容请以现场公示和合同约定为准;本文部分资料、部分图片来源于网络,如有侵权请联系我们删除
声明:本文由入驻焦点开放平台的作者撰写,除焦点官方账号外,观点仅代表作者本人,不代表焦点立场。
