中铁城·颐湖题院 2025热销项目推荐 年底买房上车最好时机 售楼部营销中心联系电话方式
扫描到手机,新闻随时看
扫一扫,用手机看文章
更加方便分享给朋友
【营销中心】:028-62585717「销售热线」
【置业顾问】:13518186441「微信同步」
【置业顾问】:13668208612「微信同步」
进入金九,全国楼市普遍迎来一轮行情修复。数据显示,2025年9月成都二手房成交量达19581套,环比8月增长11.45%,增幅仅次于北京,成交套数仅次于上海,位居全国第二。9月成都成交新房7093套,二手房成交19581套,成都楼市在9月迎来明显成交量回升。需要注意的是,今年以来,成都二手房市场始终保持着较高的交易活跃度,虽然当月19581套的成交量在全年维度来看,仅与相对淡季的5-6月水平相当,但仍超过去年同期的“金九银十”,同比增幅约28.7%。综合今年1-9月数据来看,成都今年已累计成交超18万套二手房,整体交易活跃度远超去年。
深耕温江金马十五年
黄金1公里滨河水岸大城
超5000户业主交付,滋养一生之城
📍责任央企物业 高水平服务标准
专业的物业服务团队,全龄物业服务涵盖到个人偏好习惯的照顾,让入住中铁城的每位业主,享受到最贴心的服务。
📍全维生活资源 环绕一座中铁城
三轨道交通
全龄优质教育
优质医疗资源
泰迪熊博物馆
超8万方商业配套
超1000亩滨河公园

📍“黄金1公里”水岸,实现公园度假自由
约76.1公里金马河、滨河公园、鲁家滩湿地公园、金马国际体育城马术公园等超1000亩滨河公园,生态资源环绕,主城西生态宜居大境。
📍半小时主城生活圈,多维交通畅达全城
地铁4号线、17号线、S19号线(规划中)接驳全城;
近揽成温邛快速路、距成蒲高铁温江站直线距离约800米,聚合成约半小时直达主城核心资源。
📍超8万方商业配套,荟萃万千繁华生活
项目自身规划超8万方商业配套;
近享温江奥特莱斯、伊藤洋华堂、珠江国际等大型商超环伺,满足日常购物所需。
📍优质医疗资源,守护健康生活
项目约1公里处有金马医院,驱车约十公里即可抵达温江区人民医院、成都市第五人民医院、更有八一康复中心、华西分院等医疗资源,护航健康无忧。
📍全龄优质教育,铺就非凡未来
项目自身配建迪恩捷双语幼儿园、世纪晨风幼儿园;周边在建科技园高中(引进温江三中)、蓉台大道幼儿园。
与成都七中、温江二中、成都实验外国语学校附属小学、嘉祥外国语学校温江校区、西南财经大学、成都中医院大学等名校相邻。
📍责任央企·主城西超600亩水岸大城
2018年,中铁城·温江巨著闪耀问世,前后七次推售,皆创佳绩,成就区域口碑红盘。项目住宅收官组团--颐湖题院璀璨绽放,封藏大城。
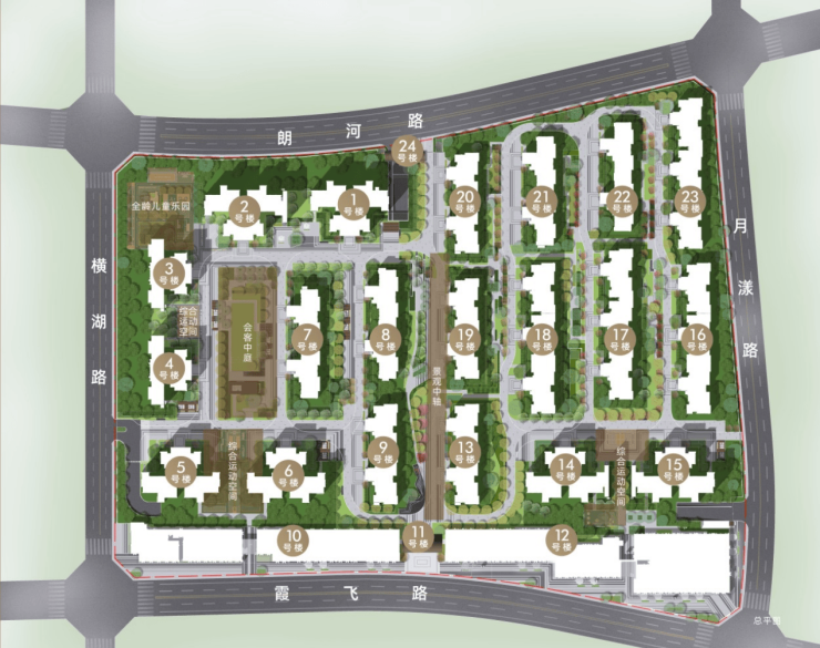
📍中铁城·颐湖题院
8栋高层半围合布局,开阔视野;
12栋洋房错落分布,前后观园景;
项目自带底商,休闲购物一站式体验。
📍三重归家场域,出入尊崇礼仪
活力主题商业街
智能归家入口
社区景观主轴

📍情绪园林空间,全龄生活场域
约2200㎡会客中庭
约1100㎡全龄儿童乐园
约1300㎡综合运动空间
全龄共享的生态、健康、休闲生活氛围
📍品质阔景洋房
前后观园景,改善高规格
📍一线河景高层
大中庭围合式布局,纵览四季
在售户型:
【营销中心】:028-62585717「销售热线」
【置业顾问】:13518186441「微信同步」
【置业顾问】:13668208612「微信同步」
温馨提示:专业一对一热情服务,为了节约您的等待时间,看房请提前致电预约
免责声明:
以上内容仅作为邀约邀请,涉及的图片为部分区域实拍图和美学畅想图,具体内容请以现场公示和合同约定为准;本文部分资料、部分图片来源于网络,如有侵权请联系我们删除。
声明:本文由入驻焦点开放平台的作者撰写,除焦点官方账号外,观点仅代表作者本人,不代表焦点立场。
