西派浣花 在售户型图 样板间 楼盘详情 售楼中心电话 售楼部地址 最新价格
扫描到手机,新闻随时看
扫一扫,用手机看文章
更加方便分享给朋友
【营销中心】:028-62585717「销售热线」
【置业顾问】:13518186441「微信同步」
【置业顾问】:13668208612「微信同步」
温馨提示:专业一对一热情服务,为了节约您的等待时间,看房请提前致电预约
根据中指研究院数据,2025年成都总价2000万以上的新房成交,仅占全市总量的约 0.2%——这是一个极度小众的“战场”,但却因其高总价而更能引发关注。对于城市而言,高总价产品的成交,代表着城市天花板的锚点。网签数据显示,1月1日-1月25日,以建发·海耀、贝宸S1为代表,加上稍早前入市的金融城 | 交子缦华二期、天览、金融城8号等项目,成都2000万+房源网签数量已超过44套。这一数据意味着,仅用不到一个月的时间,成都这一高端细分赛道的成交量已达到去年全年成交量的约三分之一,更是2022年同档次产品全年成交总量的近3倍。
建筑面积: 60987.62㎡,总户数:310户,总栋数:3栋,车位:总数358个 ,车位比:1:0.7,物业费:9元/㎡,全屋智能家居系统
建筑面积:120-165㎡一房 ,286-370㎡二房
梯户比:1#楼28层 低区3-13F三梯6户/中区14-23F三梯5户/高区24-28F三梯4户
2#楼28层 低区3-13F三梯5户/中区14-23F三梯5户/高区24-27F三梯3户
1号楼标准层平面图
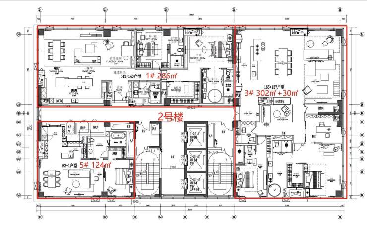
2号楼标准层平面图
【营销中心】:028-62585717「销售热线」
【置业顾问】:13518186441「微信同步」
【置业顾问】:13668208612「微信同步」
温馨提示:专业一对一热情服务,为了节约您的等待时间,看房请提前致电预约
免责声明:
以上内容仅作为邀约邀请,涉及的图片为部分区域实拍图和美学畅想图,具体内容请以现场公示和合同约定为准;本文部分资料、部分图片来源于网络,如有侵权请联系我们删除。
声明:本文由入驻焦点开放平台的作者撰写,除焦点官方账号外,观点仅代表作者本人,不代表焦点立场。
