西派浣花 楼盘年底优惠幅度 售楼地址 电话 价格区间 户型面积
扫描到手机,新闻随时看
扫一扫,用手机看文章
更加方便分享给朋友
【营销中心】:028-62585717「销售热线」
【置业顾问】:13518186441「微信同步」
【置业顾问】:13668208612「微信同步」
温馨提示:专业一对一热情服务,为了节约您的等待时间,看房请提前致电预约
纵观2025年全年,成都楼市在复杂环境中展现出较强韧性,整体表现为“政策驱动、分化复苏、回归理性”。年初市场低温开局,随着一系列支持合理住房需求的政策组合拳(包括优化限购、信贷支持等)逐步显效,年中至三季度市场信心有所修复,交易量走出低谷。四季度呈现典型的前期冲高、后期企稳特征。全年新房成交总量预计较2024年略有回暖,但距历史高峰仍有距离。市场核心特征鲜明:其一,需求结构以改善型为主导,对产品品质要求更高;其二,板块与项目分化极致,核心资产抗跌性强,远郊区域承压;其三,房企竞争白热化,产品力与服务成为关键胜负手。展望2026年,预计市场将在“房住不炒”总基调下,继续向稳健、高质量发展过渡,政策托底与市场自我调节并行,结构性机遇与挑战并存。
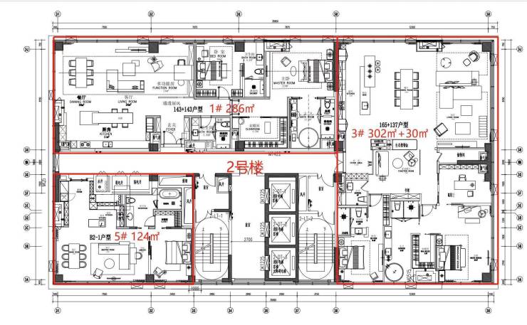
建筑面积: 60987.62㎡,总户数:310户,总栋数:3栋,车位:总数358个 ,车位比:1:0.7,物业费:9元/㎡,全屋智能家居系统
建筑面积:120-165㎡一房 ,286-370㎡二房
梯户比:1#楼28层 低区3-13F三梯6户/中区14-23F三梯5户/高区24-28F三梯4户
2#楼28层 低区3-13F三梯5户/中区14-23F三梯5户/高区24-27F三梯3户
1号楼标准层平面图
2号楼标准层平面图
【营销中心】:028-62585717「销售热线」
【置业顾问】:13518186441「微信同步」
【置业顾问】:13668208612「微信同步」
温馨提示:专业一对一热情服务,为了节约您的等待时间,看房请提前致电预约
免责声明:
以上内容仅作为邀约邀请,涉及的图片为部分区域实拍图和美学畅想图,具体内容请以现场公示和合同约定为准;本文部分资料、部分图片来源于网络,如有侵权请联系我们删除。
声明:本文由入驻焦点开放平台的作者撰写,除焦点官方账号外,观点仅代表作者本人,不代表焦点立场。
