西派浣花 2026年房价趋势-可以买房吗-销售电话-地址-户型图
扫描到手机,新闻随时看
扫一扫,用手机看文章
更加方便分享给朋友
【营销中心】:028-62585717「销售热线」
【置业顾问】:13518186441「微信同步」
【置业顾问】:13668208612「微信同步」
温馨提示:专业一对一热情服务,为了节约您的等待时间,看房请提前致电预约
2025年成都新房成交91801套,同比-7.7%;二手房成交234380套,同比+1.3%,这种“二手强,一手弱”的格局,已经持续好几年了,受2024年9.26止跌回稳的积极影响,成都2025年一季度是全年的高光,很多房企追高拿地,都是出自这个阶段。
建筑面积: 60987.62㎡,总户数:310户,总栋数:3栋,车位:总数358个 ,车位比:1:0.7,物业费:9元/㎡,全屋智能家居系统
建筑面积:120-165㎡一房 ,286-370㎡二房
梯户比:1#楼28层 低区3-13F三梯6户/中区14-23F三梯5户/高区24-28F三梯4户
2#楼28层 低区3-13F三梯5户/中区14-23F三梯5户/高区24-27F三梯3户
1号楼标准层平面图
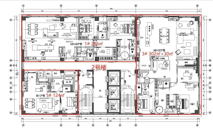
2号楼标准层平面图
【营销中心】:028-62585717「销售热线」
【置业顾问】:13518186441「微信同步」
【置业顾问】:13668208612「微信同步」
温馨提示:专业一对一热情服务,为了节约您的等待时间,看房请提前致电预约
免责声明:
以上内容仅作为邀约邀请,涉及的图片为部分区域实拍图和美学畅想图,具体内容请以现场公示和合同约定为准;本文部分资料、部分图片来源于网络,如有侵权请联系我们删除。
声明:本文由入驻焦点开放平台的作者撰写,除焦点官方账号外,观点仅代表作者本人,不代表焦点立场。
