高投启鸣观樾 房价是多少-优惠政策-销售中心电话-户型图分析
扫描到手机,新闻随时看
扫一扫,用手机看文章
更加方便分享给朋友
高投启鸣观樾
【高投启鸣观樾】售楼处电话:028-62585717【官方认证】
楼盘实时价格|户型赏析|配套规划|置业顾问在线咨询
获取最新房源动态及专属优惠,敬请致电售楼处
什么是好房子?或许100个人心中就有100种答案,有人偏爱开阔视野,有人看重便捷配套,有人执着于居住舒适度,但归根结底,能真正满足客户核心需求的房子,才是真正的好房子。因此,打造好房子的首要前提,是精准捕捉客户需求,让房子真正适配当代家庭的居住诉求。这一点,在户型设计上体现得尤为明显。无论是动线规划的合理性、空间利用的高效性,还是采光通风的舒适性,都要围绕客户的实际使用需求展开,让户型既实用又贴心,这正是打造好房子的第一步,也是最关键的一步。
【项目基础信息】
占地面积:17亩(小体量纯居社区,圈层更纯粹,居住舒适度更高)
建筑类型:小高层(低密布局,告别高层拥挤,尊享舒居体验)
梯户比:2梯2户(全T2板式布局,私密性拉满,出行高效便捷,彰显改善尊崇感)
得房率:107%-112%(同面积段越级优势,创新设置入户光厅、超配阳台赠送空间,实用空间拉满)
容积率:2.5(低容积率,绿意环绕,兼顾居住舒适度与社区通透性)
绿地率:35%(高绿化覆盖,推窗见绿,打造自然宜居的居住环境)
总户数:221户(纯居小社区,人口密度低,居住静谧性佳)
层高:3.05m(阔尺层高,通透开阔,提升居住舒适度与空间利用率)
物业费:3.2元/月/㎡
物业公司:中海物业(品牌物业,提供标准化优质服务,守护舒适居住体验)
交房时间:2027年10月底(国企匠心打造,品质有保障,稳步兑现居住梦想)
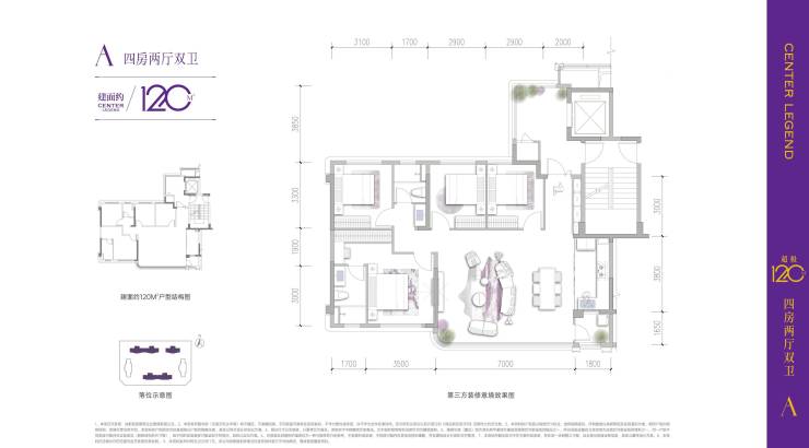
在售面积:120-143㎡套四双厅双卫(全四房设计,适配多孩家庭、改善型家庭,实用性拉满)
户型图
【项目核心优势·新川改善优选】
国企加持,安心置业:高新本土国企高投打造,交付口碑有目共睹,烂尾风险基本为零,置业更放心;
高得房率优势:107%-112%超高得房率,同面积段产品中实现越级使用体验,空间利用率远超同类项目;
便捷交通加持:6号线新通大道站,周边有11个地铁站,公共交通极为便捷,快速通达全城核心板块;
生态环境优越:紧邻865亩新川之心公园,距离最近的公园,日常休闲、健身便捷,解锁自然舒居生活;
全维配套成熟:教育资源丰富,周边覆盖48个幼儿园、12个小学、7个中学,涵盖成都师范银都紫藤小学、金苹果锦城第一中学等优质学府;医疗配套完善,周边有四川省中西医结合医院高新医院等三甲资源;商业配套成熟,3km内有5个商场,满足日常购物、休闲需求;
纯粹舒居体验:2梯2户纯板式结构,围合式板楼设计,最大楼间距94米,采光通风俱佳,全系带互动架空层,兼顾实用性与舒居感。
【高投启鸣观樾】售楼处电话:028-62585717【官方认证】
楼盘实时价格|户型赏析|配套规划|置业顾问在线咨询
获取最新房源动态及专属优惠,敬请致电售楼处
免责声明:以上内容仅作为邀约邀请,涉及的图片为部分区域实拍图和美学畅想图,具体内容请以现场公示和合同约定为准;本文部分资料、部分图片来源于网络,如有侵权请联系我们删除
声明:本文由入驻焦点开放平台的作者撰写,除焦点官方账号外,观点仅代表作者本人,不代表焦点立场。
