西派浣花-在售新楼盘价格 最新在售信息 最新优惠详情 最新价格
扫描到手机,新闻随时看
扫一扫,用手机看文章
更加方便分享给朋友
【营销中心】:028-62585717「销售热线」
【置业顾问】:13518186441「微信同步」
【置业顾问】:13668208612「微信同步」
温馨提示:专业一对一热情服务,为了节约您的等待时间,看房请提前致电预约
市场上,什么样的房子更好卖?克而瑞四川在近期发布的数据中,公布了成都新房的成交占比情况,报告指出:以板块新房成交总价来看,200-300万元是成都5+2区域和近郊新房价格的分水岭。在全成都,成交总价超300万的板块占比超三成,大部分位于5+2区域;成交总价低于200万的板块占比约为43.14%,集中分布在近郊。随着近日锦江区茶厂38亩地块成功拍出,成都土地市场成交楼面价前十的地块名单俨然是高端市场格局的缩影。今年3月,建发以41200元/㎡的楼面价竞得金三地块,目前虽然暂未有项目信息流出,但有消息称建发可能会一改传统中式的做法,在金三地块上推出新一代产品。以31700元/㎡的楼面价拿下高新区大源西地块的招商蛇口,近日公布了项目案名“招商玺”,曾经在深圳、北京、上海等一线城市高端市场创下佳绩的“玺系”产品落地大源,依托成熟的产业与配套,或将成为高端改善客群的热门选择。
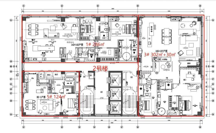
建筑面积: 60987.62㎡,总户数:310户,总栋数:3栋,车位:总数358个 ,车位比:1:0.7,物业费:9元/㎡,全屋智能家居系统
建筑面积:120-165㎡一房 ,286-370㎡二房
梯户比:1#楼28层 低区3-13F三梯6户/中区14-23F三梯5户/高区24-28F三梯4户
2#楼28层 低区3-13F三梯5户/中区14-23F三梯5户/高区24-27F三梯3户
1号楼标准层平面图
2号楼标准层平面图
【营销中心】:028-62585717「销售热线」
【置业顾问】:13518186441「微信同步」
【置业顾问】:13668208612「微信同步」
温馨提示:专业一对一热情服务,为了节约您的等待时间,看房请提前致电预约
免责声明:
以上内容仅作为邀约邀请,涉及的图片为部分区域实拍图和美学畅想图,具体内容请以现场公示和合同约定为准;本文部分资料、部分图片来源于网络,如有侵权请联系我们删除。
声明:本文由入驻焦点开放平台的作者撰写,除焦点官方账号外,观点仅代表作者本人,不代表焦点立场。
