黄龙溪谷塔希提楼盘地址-咨询电话-样板间-户型图-11月总价多少-
扫描到手机,新闻随时看
扫一扫,用手机看文章
更加方便分享给朋友
【营销中心】:028-62585717「销售热线」
【置业顾问】:13518186441「微信同步」
【置业顾问】:13668208612「微信同步」
楼市大拆大建的时代已经过去,控地去库存依然是基调,通过城市更新改造老破小,也能变成“好房子”,当人口增长放缓与市场供应达到临界点,核心区域新房价格持续走高,供需关系发生变化,卖方的恐慌心理也会随之减少,不排除价格回升的可能性!核心城市核心地段的新规好房子拥有10%净利率,但头部房企过去2021年前累计的老库存短期可能消化不了。比如截止2024年底保利土储总货值还有1.9万亿,万科还有1万亿。未来房企即使是头部房企,至少也需1~2年时间消化此前获取的高成本存量土地。

产品亮点:
1、270度景观面
2、叠拼使用面积430-870平
3、近370平首层空间
4、面宽12米,巨幕LDK
5、超40平双主卧套房


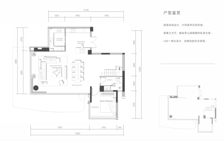
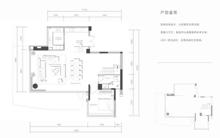
产品户型
叠墅【二叠墅】总高:4F(地上2f、地下2f)
(户型图皆为先一层,后二层)
下叠·364㎡·四室两厅四卫


上叠·365㎡·五室两厅五卫


下叠·246㎡·四室两厅四卫


中叠·279㎡·四室两厅五卫


上叠·267㎡·四室两厅四卫


洋房:

面积:175平/190平


区域介绍
项目位于天府新区、黄龙溪古镇旁,是早期在黄龙溪板块开发的项目之一,携手知名建筑、景观、生态治理团队,打造中国西南生态大盘典范。
提及成都的未来一定在国际城南,而提及城南几块为少数人精心准备的土地,本项目则在此名单之列,它独具创意地完美融合自然与生活,演绎着何为成都高端墅居,刷新着对终极置业的想象。
🌲东方的塔希提 世界的桃花源🌲
塔希提岛:世界上最浪漫的岛屿,被称为“最接近天堂的地方”。
12载谨献一座塔希提,为天府创造一座岛,在溪谷,像塔希提一样生活。
【营销中心】:028-62585717「销售热线」
【置业顾问】:13518186441「微信同步」
【置业顾问】:13668208612「微信同步」
温馨提示:专业一对一热情服务,为了节约您的等待时间,看房请提前致电预约
免责声明:
以上内容仅作为邀约邀请,涉及的图片为部分区域实拍图和美学畅想图,具体内容请以现场公示和合同约定为准;本文部分资料、部分图片来源于网络,如有侵权请联系我们删除
声明:本文由入驻焦点开放平台的作者撰写,除焦点官方账号外,观点仅代表作者本人,不代表焦点立场。
