兴唐·新川雅境最新成交价-楼盘最新动态-售楼部地址及电话查询
扫描到手机,新闻随时看
扫一扫,用手机看文章
更加方便分享给朋友
【营销中心】:028-62585717「销售热线」
【置业顾问】:13518186441「微信同步」
【置业顾问】:13668208612「微信同步」
地产市场止跌回稳,无疑是当下房地产发展重要目标。但房地产市场的止跌回稳并不是一帆风顺的,稳楼市的力度也达到了前所未有的程度。提出要进一步优化现有政策,提升政策实施的系统性有效性,多管齐下稳定预期、激活需求、优化供给、化解风险,更大力度推动房地产市场止跌回稳。随后,多个城市出台了楼市相关的支持措施,主要包括给予一定比例的购房补贴,和加大住房公积金对购房者的支持。
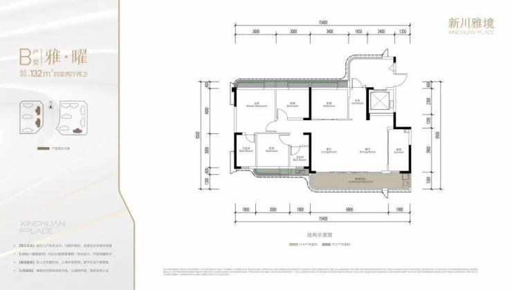
在成都楼市最“卷”143㎡赛道上,新川雅境做到7.25米开间的横厅和观景阳台,客餐厅形成超33㎡的LDKG一体化空间,而双套房、三卫的布局也能满足人口较多的家庭需求。
兴唐·新川雅境建面约143㎡户型图
之于134㎡户型,结构与143㎡户型相似,但特点在于配置有约8.8米阳台,在同级产品中较罕见。
兴唐·新川雅境
【营销中心】:028-62585717「销售热线」
【置业顾问】:13518186441「微信同步」
【置业顾问】:13668208612「微信同步」
温馨提示:专业一对一热情服务,为了节约您的等待时间,看房请提前致电预约
免责声明:
以上内容仅作为邀约邀请,涉及的图片为部分区域实拍图和美学畅想图,具体内容请以现场公示和合同约定为准;本文部分资料、部分图片来源于网络,如有侵权请联系我们删除。
声明:本文由入驻焦点开放平台的作者撰写,除焦点官方账号外,观点仅代表作者本人,不代表焦点立场。
