海德one99 新房价值高吗?可以下手买吗?
扫描到手机,新闻随时看
扫一扫,用手机看文章
更加方便分享给朋友
【营销中心】:028-62585717「销售热线」
【置业顾问】:13518186441「微信同步」
【置业顾问】:13668208612「微信同步」
温馨提示:专业一对一热情服务,为了节约您的等待时间,看房请提前致电预约
虽然2025年成都楼市最直观的行业体感是“规模收缩”,但放在全国市场来看,成都仍然是一个生机勃勃的高能级市场。我们从房联备案口径全年成交数据的TOP10榜单中,看到了一个不一样的成都楼市。由于我们选取的维度为备案口径数据,或许会跟其他口径数据有些出入,但这一数据却更真实、具备参考性。2025年市场规模的缩减,是不争的事实。中指研究院数据显示,2025成都商品住宅成交面积为1181万㎡,同比下降18.3%。成交规模缩减背后的关键原因在于供应量的下滑。中指研究院数据显示,2025成都商品住宅供应面积为1037万㎡,同比下降20.5%。但规模收缩的表象下成都市场仍然暗藏澎湃活力,去年销售TOP10的榜单就是这样的集中体现。在这份榜单中,中国金茂、华发、成都嘉禾兴都是首次登榜,新上榜的企业纷纷将成都视为战略深耕的重要阵地,一直在榜单上的房企保利、华润置地、招商蛇口、中国铁建等,也更愿意在这座城市创造新的增长机会。
占地:56.7亩
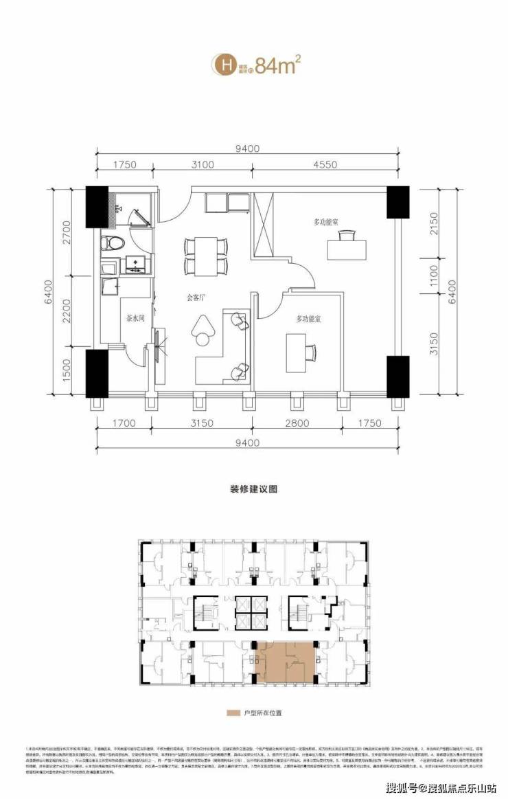
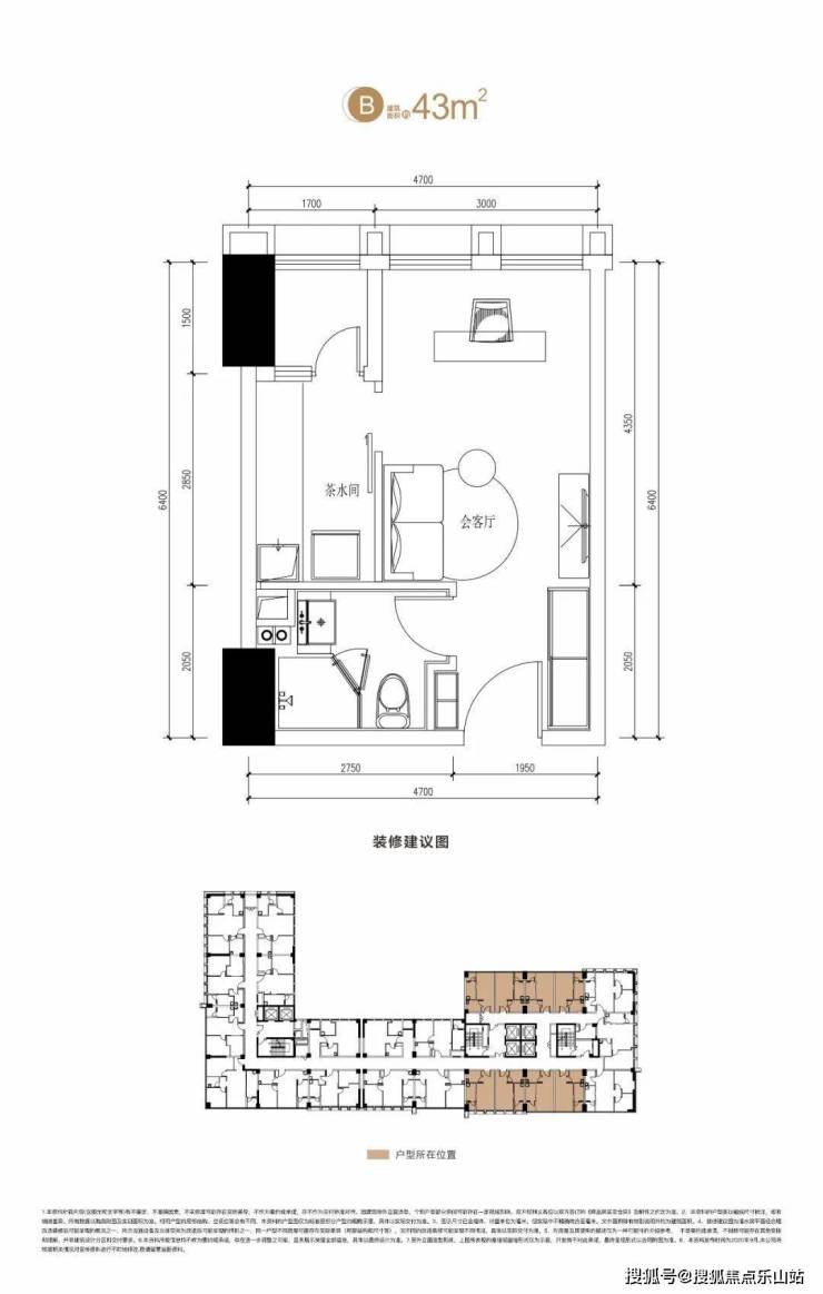
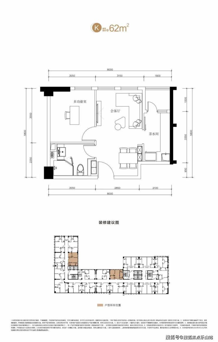
户型:标间(43—52㎡)/套一(62—67㎡)/套二(67—87㎡)/套三(84—120㎡)
公摊:25—30%
交付:精装
总户数:2457户
单价:8400—9000元/㎡
总层高:23F—32F
层高:3米
绿化率:20%
梯户比:6T24/4T12
开发商:碧桂园
物业费:2.4元/㎡
物业公司:碧桂园物业
交房时间:2023年11月
付款方式:按揭、全款、支持首付分期、全款分期

六大购买理由:
1、零门槛买入新一线城市——双流区主中心
2、近享千亿产业园发展红利——成都芯谷
3、便捷的城市级轨交站点——彭镇TOD
4、城市级商业地标,第四大商业街——海德广场
5、标间/套一/套二/套三全面积段产品,满足所有需求
6、总价38万起,清水价买超高性价比类住宅
温馨提示:专业一对一热情服务,为了节约您的等待时间,看房请提前致电预约
免责声明:
以上内容仅作为邀约邀请,涉及的图片为部分区域实拍图和美学畅想图,具体内容请以现场公示和合同约定为准;本文部分资料、部分图片来源于网络,如有侵权请联系我们删除。
声明:本文由入驻焦点开放平台的作者撰写,除焦点官方账号外,观点仅代表作者本人,不代表焦点立场。
